Villa Sivas

Plans de maison moderne

147.88 m2

3

2

Extérieur villa Sivas Archionline
Intérieur Villa Sivas archionline

Description

Archionline propose une belle maison contemporaine de 148m² environ pouvant s’implanter facilement dans un terrain en légère pente.

De conception simple, mais élégante, les espaces de la maison viennent se glisser entre les murs de pierres. Très lumineuse, grâce à son grand espace libre traversant et vitré, les jeux d’ombres et de lumière sont multiples et viennent rompre le côté massif des murs, donnant ainsi à la maison une ambiance plus aérienne. Les toitures en légère pente s’ouvrent d’ailleurs vers l’extérieur.
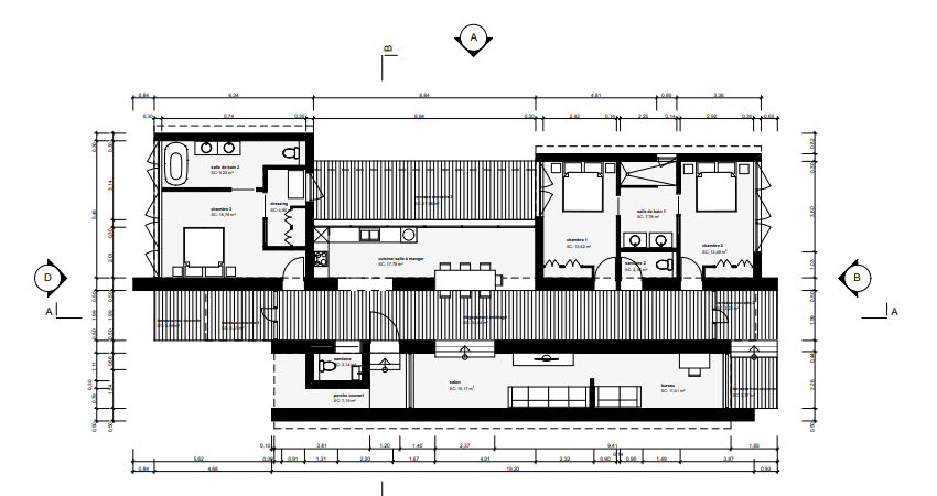
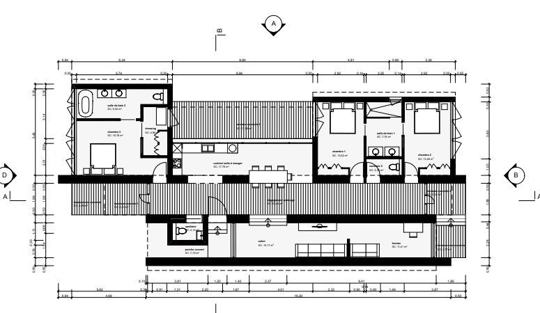
L’ensemble des espaces de la maison se situent en rez-de-chaussée et accueille un décalage de niveau de 80cm permettant aux espaces de mieux se répartir et d’être indépendant les uns des autres.

L’entrée, discrète se fait en passant entre deux murs et donne directement sur le long espace traversant baigné de lumière. Cet espace divise la maison en deux parties. Sur le même niveau, vous trouverez une cuisine ouverte et salle à manger. Ses baies vitrées permettent l’accès à une grande terrasse en arrière de la maison.

Vous trouverez également les chambres, l’une s’apparente à une suite parentale et comprend une chambre de 15,78m², un dressing et une salle de bain privée. De l’autre côté, deux chambres jumelles de 13,5m² avec salle de bain commune complètent le niveau. En contrebas depuis l’espace traversant, vous accéderez au séjour et bureau, totalement vitré de part et d’autre pour faire rentrer la lumière toute la journée.

Rêvez grâce à Archionline et construisez votre propre maison d’architecte individuelle !

Construire cette maison

À partir de 212 000 € TTC

Je veux (presque) la même !

Pourquoi construire avec un architecte ?

Archionline vous permet de vous inspirer parmi plus d'un millier de plans de maisons en 3D afin de découvrir le savoir-faire et les réalisations des architectes. Ces plans sont une base solide pour envisager votre projet. Ils seront ensuite adaptés avec l'architecte créateur en fonction de votre environnement, votre envie et votre budget. L'architecte permet d'avoir un projet où chaque mètre-carré est complètement optimisé tout en respectant votre style de vie, vos envies et vos contraintes. Construire avec un architecte n'est pas forcément plus cher car il saura anticiper les différentes problématiques de votre construction afin d'avoir un projet qui respecte votre budget

Tableau de surfaces

Surface habitable

Surface cuisine :
17.78 m²
Salles de bain :
2
Nombre de chambre :
3
Surface chambre 1 :
13.52 m²
Surface chambre 2 :
13.49 m²
Surface chambre 3 :
15.78 m²

Surface annexe

Terrasse :
8.72 m²
Terrasse non couverte :
7.86 m²

Synthèse

Total surface habitable :
147.88 m²
Emprise au sol :
24.2 m x 11.5 m
Total surface annexe :
15.81 m²

Je veux (presque) la même !

Confiez votre projet

Budget et procédé

Archionline vous offre un chiffrage estimatif pour la construction de cette maison en fonction du procédé constructif et du type de livraison souhaité : auto-construction, clos couvert (hors d'eau, hors d'air) ou clé en main.

Construction classique

Chiffrage estimatif pour : Fondations et normes standards. Construction en brique, parpaing ou béton. Finitions haut de gamme. Le prix "auto-construction" inclut uniquement le coût des matériaux de construction. Il n'inclut pas la main d'oeuvre, piscine, jardin et clôture.

À partir de

141 000€ TTC

Je la veux !

Construction ossature bois

Chiffrage estimatif pour : Fondations et normes standards. Construction en ossature bois isolé. Finitions haut de gamme. Le prix "auto-construction" inclut uniquement le coût des matériaux de construction. Il n'inclut pas la main d'oeuvre, piscine, jardin et clôture.

À partir de

188 000€ TTC

Je la veux !

Construction BBC

Chiffrage estimatif pour : Fondations et normes standards. Construction en bloc coffrant isolant (RT 2020). Finitions haut de gamme. Le prix "auto-construction" inclut uniquement le coût des matériaux de construction. Il n'inclut pas la main d'oeuvre, piscine, jardin et clôture.

À partir de

188 000€ TTC

Je la veux !

Construction classique

Chiffrage estimatif pour : Fondations et normes standards. Construction en brique, parpaing ou béton. Finitions haut de gamme. Le prix "clos couvert" (hors d'eau, hors d'air) inclut le gros oeuvre, mais exclut le second oeuvre, piscine, jardin et clôture.

À partir de

173 000€ TTC

Je la veux !

Construction ossature bois

Chiffrage estimatif pour : Fondations et normes standards. Construction en ossature bois isolé. Finitions haut de gamme. Le prix "clos couvert" (hors d'eau, hors d'air) inclut le gros oeuvre, mais exclut le second oeuvre, piscine, jardin et clôture.

À partir de

188 000€ TTC

Je la veux !

Construction BBC

Chiffrage estimatif pour : Fondations et normes standards. Construction en bloc coffrant isolant (RT 2020). Finitions haut de gamme. Le prix "clos couvert" (hors d'eau, hors d'air) inclut le gros oeuvre, mais exclut le second oeuvre, piscine, jardin et clôture.

À partir de

204 000€ TTC

Je la veux !

Construction classique

Chiffrage estimatif pour : Fondations et normes standards. Construction en brique, parpaing ou béton. Finitions haut de gamme. Le prix "clé en main" inclut le gros oeuvre et le second oeuvre (cuisine, peinture, sols...), mais exclut piscine, jardin et clôture.

À partir de

281 000€ TTC

Je la veux !

Construction ossature bois

Chiffrage estimatif pour : Fondations et normes standards. Construction en ossature bois isolé. Finitions haut de gamme. Le prix "clé en main" inclut le gros oeuvre et le second oeuvre (cuisine, peinture, sols...), mais exclut piscine, jardin et clôture.

À partir de

281 000€ TTC

Je la veux !

Construction BBC

Chiffrage estimatif pour : Fondations et normes standards. Construction en bloc coffrant isolant (RT 2020). Finitions haut de gamme. Le prix "clé en main" inclut le gros oeuvre et le second oeuvre (cuisine, peinture, sols...), mais exclut piscine, jardin et clôture.

À partir de

328 000€ TTC

Je la veux !

D'autres maisons qui pourraient vous intéresser