Maison Acacia

Plans de maison moderne

123.8 m2

3

3

Description

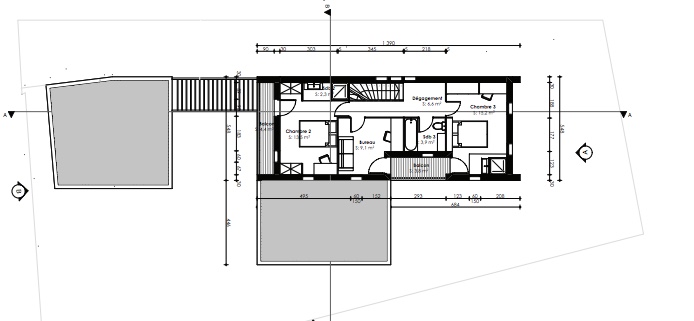
Devenez propriétaire de cette maison mêlant style contemporain et traditionnelle de 123,8 m². Sur deux niveaux, la villa vous offre un salon / salle à manger de 30 m² avec double exposition et vue sur les deux terrasses réparties autour de la maison. La cuisine situé à l’entrée est ouverte sur le salon et permet convivialité et modernité. Desservi par un couloir fermé, on trouve une première chambre ou suite parentale avec salle de bain privé comprenant douche et baignoire. Des Wc sont également accessible du couloir qui peut être privatisé. L’entrée, couverte par un porche, possède une pergola en bois menant également au garage spacieux situé en retrait de la maison et permettant d’accueillir deux véhicules. A l’étage, un palier deux chambres spacieuses d’environ 13 m² et 15 m² avec coin salle de bain integré. Un bureau et une seconde salle de bain sont desservis et un petit balcon est accessible par le bureau, qui peut également faire office de quatriéme chambre, et la grande chambre. Vous pourrez profitez des beaux jours sur les deux terrasses de 14,5 m² et 9,5 m². Lumineuse, ses baies vitrées vous permettront de bénéficier d’une lumière naturelle et d’avoir une vue directe sur le jardin. N’attendez plus et télécharger les plans de cette maison d’architecte pour commencer le projet de votre futur maison.

Construire cette maison

À partir de 212 000 € TTC

Je veux (presque) la même !

Pourquoi construire avec un architecte ?

Archionline vous permet de vous inspirer parmi plus d'un millier de plans de maisons en 3D afin de découvrir le savoir-faire et les réalisations des architectes. Ces plans sont une base solide pour envisager votre projet. Ils seront ensuite adaptés avec l'architecte créateur en fonction de votre environnement, votre envie et votre budget. L'architecte permet d'avoir un projet où chaque mètre-carré est complètement optimisé tout en respectant votre style de vie, vos envies et vos contraintes. Construire avec un architecte n'est pas forcément plus cher car il saura anticiper les différentes problématiques de votre construction afin d'avoir un projet qui respecte votre budget

Tableau de surfaces

Surface habitable

Surface cuisine :
6 m²
Salles de bain :
3
Nombre de chambre :
3
Surface chambre 1 :
10.7 m²
Surface chambre 2 :
13.5 m²
Surface chambre 3 :
15.2 m²

Surface annexe

Garage :
32.7 m²
Terrasse :
14.5 m²
Terrasse non couverte :
9.5 m²

Synthèse

Total surface habitable :
123.8 m²
Emprise au sol :
25.08m x 9.95 m
Total surface annexe :
75.5 m²

Je veux (presque) la même !

Confiez votre projet

Budget et procédé

Archionline vous offre un chiffrage estimatif pour la construction de cette maison en fonction du procédé constructif et du type de livraison souhaité : auto-construction, clos couvert (hors d'eau, hors d'air) ou clé en main.

Construction classique

Chiffrage estimatif pour : Fondations et normes standards. Construction en brique, parpaing ou béton. Finitions haut de gamme. Le prix "auto-construction" inclut uniquement le coût des matériaux de construction. Il n'inclut pas la main d'oeuvre, piscine, jardin et clôture.

À partir de

131 000€ TTC

Je la veux !

Construction ossature bois

Chiffrage estimatif pour : Fondations et normes standards. Construction en ossature bois isolé. Finitions haut de gamme. Le prix "auto-construction" inclut uniquement le coût des matériaux de construction. Il n'inclut pas la main d'oeuvre, piscine, jardin et clôture.

À partir de

170 000€ TTC

Je la veux !

Construction BBC

Chiffrage estimatif pour : Fondations et normes standards. Construction en bloc coffrant isolant (RT 2020). Finitions haut de gamme. Le prix "auto-construction" inclut uniquement le coût des matériaux de construction. Il n'inclut pas la main d'oeuvre, piscine, jardin et clôture.

À partir de

170 000€ TTC

Je la veux !

Construction classique

Chiffrage estimatif pour : Fondations et normes standards. Construction en brique, parpaing ou béton. Finitions haut de gamme. Le prix "clos couvert" (hors d'eau, hors d'air) inclut le gros oeuvre, mais exclut le second oeuvre, piscine, jardin et clôture.

À partir de

166 000€ TTC

Je la veux !

Construction ossature bois

Chiffrage estimatif pour : Fondations et normes standards. Construction en ossature bois isolé. Finitions haut de gamme. Le prix "clos couvert" (hors d'eau, hors d'air) inclut le gros oeuvre, mais exclut le second oeuvre, piscine, jardin et clôture.

À partir de

179 000€ TTC

Je la veux !

Construction BBC

Chiffrage estimatif pour : Fondations et normes standards. Construction en bloc coffrant isolant (RT 2020). Finitions haut de gamme. Le prix "clos couvert" (hors d'eau, hors d'air) inclut le gros oeuvre, mais exclut le second oeuvre, piscine, jardin et clôture.

À partir de

192 000€ TTC

Je la veux !

Construction classique

Chiffrage estimatif pour : Fondations et normes standards. Construction en brique, parpaing ou béton. Finitions haut de gamme. Le prix "clé en main" inclut le gros oeuvre et le second oeuvre (cuisine, peinture, sols...), mais exclut piscine, jardin et clôture.

À partir de

261 000€ TTC

Je la veux !

Construction ossature bois

Chiffrage estimatif pour : Fondations et normes standards. Construction en ossature bois isolé. Finitions haut de gamme. Le prix "clé en main" inclut le gros oeuvre et le second oeuvre (cuisine, peinture, sols...), mais exclut piscine, jardin et clôture.

À partir de

261 000€ TTC

Je la veux !

Construction BBC

Chiffrage estimatif pour : Fondations et normes standards. Construction en bloc coffrant isolant (RT 2020). Finitions haut de gamme. Le prix "clé en main" inclut le gros oeuvre et le second oeuvre (cuisine, peinture, sols...), mais exclut piscine, jardin et clôture.

À partir de

300 000€ TTC

Je la veux !

D'autres maisons qui pourraient vous intéresser