Maison Androide

Plans de maison moderne

346.16 m2

3

2

Maison Androide Archionline extérieur
Piscine Maison Androide Archionline
Intérieur maison Androide Archionline

Description

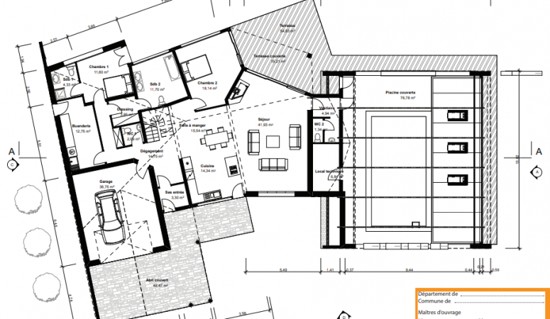
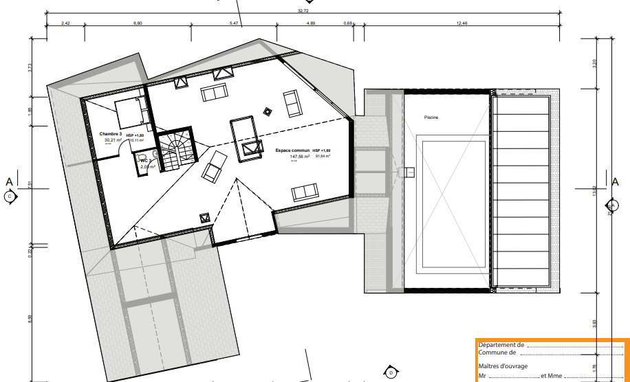
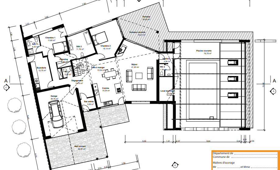
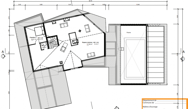
Le plan de cette maison traditionnelle d’une surface habitable de 346,16 m². Elle fait partie de notre collection  » luxe  » avec son extension moderne comprenant une piscine couverte et espaces attenants. Idéal pour toutes les grandes familles, cette maison, à deux niveaux, est adaptable à toutes les régions de France. L’entrée ouvre sur un dégagement spacieux qui dessert les différents espaces. A droite, on trouve la grande pièce à vivre comprenant la cuisine de 14,34 m², une salle à manger de 15,54 m² et un séjour avec cheminée de 41,93 m². Un première chambre est accessible de la salle à manger et s’ouvre sur la terrasse couverte commune au séjour. A gauche de l’entrée, un couloir dessert la seconde chambre du RDC ainsi qu’une buanderie, deux salles de bain et un dressing. L’entrée ouvre également sur un garage pouvant abriter deux voitures. A l’étage, on trouve un espace commun très spacieux à aménager de prés de 100 m², ainsi qu’une chambre et des WC pouvant accueillir une personne en plus. Vous pourrez profiter d’une piscine privée fermée en toute saison grâce à une extension contemporaine vitrée accessible du salon. Un vestiaire permet d’accéder au WC et sanitaire dédié à celle ci. Avec ses grandes ouvertures vous pourrez profiter de la chaleur en hiver et du soleil en été dans un espace couvert de plus de 70 m². Votre rêve de construire votre propre maison d’architecte individuelle n’a jamais été aussi proche qu’avec ce plan de maison traditionnelle alliant modernité et fonctionnalité.

Construire cette maison

À partir de 471 000 € TTC

Je veux (presque) la même !

Pourquoi construire avec un architecte ?

Archionline vous permet de vous inspirer parmi plus d'un millier de plans de maisons en 3D afin de découvrir le savoir-faire et les réalisations des architectes. Ces plans sont une base solide pour envisager votre projet. Ils seront ensuite adaptés avec l'architecte créateur en fonction de votre environnement, votre envie et votre budget. L'architecte permet d'avoir un projet où chaque mètre-carré est complètement optimisé tout en respectant votre style de vie, vos envies et vos contraintes. Construire avec un architecte n'est pas forcément plus cher car il saura anticiper les différentes problématiques de votre construction afin d'avoir un projet qui respecte votre budget

Tableau de surfaces

Surface habitable

Surface cuisine :
14.34 m²
Salles de bain :
2
Nombre de chambre :
3
Surface chambre 1 :
11.8 m²
Surface chambre 2 :
18.14 m²
Surface chambre 3 :
10.11 m²

Surface annexe

Garage :
36.75 m²
Terrasse :
15.21 m²
Terrasse non couverte :
54.93 m²

Synthèse

Total surface habitable :
346.16 m²
Emprise au sol :
32.72 m x 21.90 m
Total surface annexe :
106.89 m²

Je veux (presque) la même !

Confiez votre projet

Budget et procédé

Archionline vous offre un chiffrage estimatif pour la construction de cette maison en fonction du procédé constructif et du type de livraison souhaité : auto-construction, clos couvert (hors d'eau, hors d'air) ou clé en main.

Construction classique

Chiffrage estimatif pour : Fondations et normes standards. Construction en brique, parpaing ou béton. Finitions haut de gamme. Le prix "auto-construction" inclut uniquement le coût des matériaux de construction. Il n'inclut pas la main d'oeuvre, piscine, jardin et clôture.

À partir de

342 000€ TTC

Je la veux !

Construction ossature bois

Chiffrage estimatif pour : Fondations et normes standards. Construction en ossature bois isolé. Finitions haut de gamme. Le prix "auto-construction" inclut uniquement le coût des matériaux de construction. Il n'inclut pas la main d'oeuvre, piscine, jardin et clôture.

À partir de

451 000€ TTC

Je la veux !

Construction BBC

Chiffrage estimatif pour : Fondations et normes standards. Construction en bloc coffrant isolant (RT 2020). Finitions haut de gamme. Le prix "auto-construction" inclut uniquement le coût des matériaux de construction. Il n'inclut pas la main d'oeuvre, piscine, jardin et clôture.

À partir de

451 000€ TTC

Je la veux !

Construction classique

Chiffrage estimatif pour : Fondations et normes standards. Construction en brique, parpaing ou béton. Finitions haut de gamme. Le prix "clos couvert" (hors d'eau, hors d'air) inclut le gros oeuvre, mais exclut le second oeuvre, piscine, jardin et clôture.

À partir de

426 000€ TTC

Je la veux !

Construction ossature bois

Chiffrage estimatif pour : Fondations et normes standards. Construction en ossature bois isolé. Finitions haut de gamme. Le prix "clos couvert" (hors d'eau, hors d'air) inclut le gros oeuvre, mais exclut le second oeuvre, piscine, jardin et clôture.

À partir de

462 000€ TTC

Je la veux !

Construction BBC

Chiffrage estimatif pour : Fondations et normes standards. Construction en bloc coffrant isolant (RT 2020). Finitions haut de gamme. Le prix "clos couvert" (hors d'eau, hors d'air) inclut le gros oeuvre, mais exclut le second oeuvre, piscine, jardin et clôture.

À partir de

499 000€ TTC

Je la veux !

Construction classique

Chiffrage estimatif pour : Fondations et normes standards. Construction en brique, parpaing ou béton. Finitions haut de gamme. Le prix "clé en main" inclut le gros oeuvre et le second oeuvre (cuisine, peinture, sols...), mais exclut piscine, jardin et clôture.

À partir de

684 000€ TTC

Je la veux !

Construction ossature bois

Chiffrage estimatif pour : Fondations et normes standards. Construction en ossature bois isolé. Finitions haut de gamme. Le prix "clé en main" inclut le gros oeuvre et le second oeuvre (cuisine, peinture, sols...), mais exclut piscine, jardin et clôture.

À partir de

684 000€ TTC

Je la veux !

Construction BBC

Chiffrage estimatif pour : Fondations et normes standards. Construction en bloc coffrant isolant (RT 2020). Finitions haut de gamme. Le prix "clé en main" inclut le gros oeuvre et le second oeuvre (cuisine, peinture, sols...), mais exclut piscine, jardin et clôture.

À partir de

793 000€ TTC

Je la veux !

D'autres maisons qui pourraient vous intéresser