Maison Ambre

Plans de maison moderne

100.7 m2

3

2

Maison Ambre archionline vue extérieur
Intérieur maison Ambre Archionline

Description

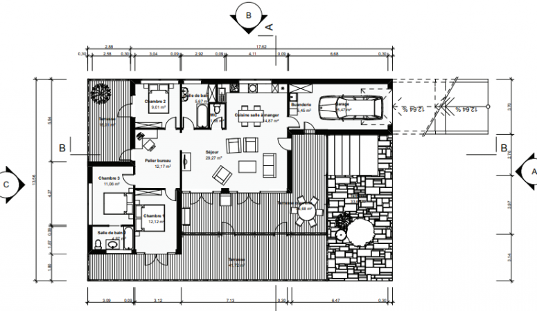
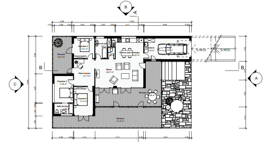
Cette propriété contemporaine de 100,7 m² peut accueillir toutes les familles avec ses trois chambres ou correspondre à une villa secondaire dans laquelle passer vos vacances. De plein pied, cette maison à revêtement bois s’intègre facilement avec son environnement. Sa cuisine salle à manger de 14,87 m² est ouverte sur le salon de 29,27 m². Lumineuse, ses baies vitrées vous permettront de bénéficier d’un éclairage naturel toute la journée et d’avoir une vue directe sur la grande terrasse et le jardin. La maison possède trois chambres desservis par un palier bureau de 12,17 m² dont une possédant sa propre salle de bain avec baignoire. Deux des chambres ont un accès à la terrasse mais l’accès se fait par le bureau et le séjour également. La maison possède une belle terrasse couverte vitrée conçu comme un prolongement du salon sur l’extérieur. Un garage de 15,47 m² et un espace buanderie de 5,45 m² viennent compléter cette maison. Idéale pour les terrains réduits et les envies d’originalité, vous pouvez télécharger les plans simples de cette maison d’architecte pour vous inspirer ou les plans complets sur notre réseau prestataire pour commencer votre avant projet dés à present.

Construire cette maison

À partir de 168 000 € TTC

Je veux (presque) la même !

Pourquoi construire avec un architecte ?

Archionline vous permet de vous inspirer parmi plus d'un millier de plans de maisons en 3D afin de découvrir le savoir-faire et les réalisations des architectes. Ces plans sont une base solide pour envisager votre projet. Ils seront ensuite adaptés avec l'architecte créateur en fonction de votre environnement, votre envie et votre budget. L'architecte permet d'avoir un projet où chaque mètre-carré est complètement optimisé tout en respectant votre style de vie, vos envies et vos contraintes. Construire avec un architecte n'est pas forcément plus cher car il saura anticiper les différentes problématiques de votre construction afin d'avoir un projet qui respecte votre budget

Tableau de surfaces

Surface habitable

Surface cuisine :
14.87 m²
Salles de bain :
2
Nombre de chambre :
3
Surface chambre 1 :
12.12 m²
Surface chambre 2 :
9.01 m²
Surface chambre 3 :
11.06 m²

Surface annexe

Garage :
15.47 m²
Terrasse :
36.68 m²
Terrasse non couverte :
91.37 m²

Synthèse

Total surface habitable :
100.7 m²
Emprise au sol :
13.56 m x 17.62 m
Total surface annexe :
148.97 m²

Je veux (presque) la même !

Confiez votre projet

Budget et procédé

Archionline vous offre un chiffrage estimatif pour la construction de cette maison en fonction du procédé constructif et du type de livraison souhaité : auto-construction, clos couvert (hors d'eau, hors d'air) ou clé en main.

Construction classique

Chiffrage estimatif pour : Fondations et normes standards. Construction en brique, parpaing ou béton. Finitions haut de gamme. Le prix "auto-construction" inclut uniquement le coût des matériaux de construction. Il n'inclut pas la main d'oeuvre, piscine, jardin et clôture.

À partir de

104 000€ TTC

Je la veux !

Construction ossature bois

Chiffrage estimatif pour : Fondations et normes standards. Construction en ossature bois isolé. Finitions haut de gamme. Le prix "auto-construction" inclut uniquement le coût des matériaux de construction. Il n'inclut pas la main d'oeuvre, piscine, jardin et clôture.

À partir de

136 000€ TTC

Je la veux !

Construction BBC

Chiffrage estimatif pour : Fondations et normes standards. Construction en bloc coffrant isolant (RT 2020). Finitions haut de gamme. Le prix "auto-construction" inclut uniquement le coût des matériaux de construction. Il n'inclut pas la main d'oeuvre, piscine, jardin et clôture.

À partir de

136 000€ TTC

Je la veux !

Construction classique

Chiffrage estimatif pour : Fondations et normes standards. Construction en brique, parpaing ou béton. Finitions haut de gamme. Le prix "clos couvert" (hors d'eau, hors d'air) inclut le gros oeuvre, mais exclut le second oeuvre, piscine, jardin et clôture.

À partir de

132 000€ TTC

Je la veux !

Construction ossature bois

Chiffrage estimatif pour : Fondations et normes standards. Construction en ossature bois isolé. Finitions haut de gamme. Le prix "clos couvert" (hors d'eau, hors d'air) inclut le gros oeuvre, mais exclut le second oeuvre, piscine, jardin et clôture.

À partir de

143 000€ TTC

Je la veux !

Construction BBC

Chiffrage estimatif pour : Fondations et normes standards. Construction en bloc coffrant isolant (RT 2020). Finitions haut de gamme. Le prix "clos couvert" (hors d'eau, hors d'air) inclut le gros oeuvre, mais exclut le second oeuvre, piscine, jardin et clôture.

À partir de

153 000€ TTC

Je la veux !

Construction classique

Chiffrage estimatif pour : Fondations et normes standards. Construction en brique, parpaing ou béton. Finitions haut de gamme. Le prix "clé en main" inclut le gros oeuvre et le second oeuvre (cuisine, peinture, sols...), mais exclut piscine, jardin et clôture.

À partir de

208 000€ TTC

Je la veux !

Construction ossature bois

Chiffrage estimatif pour : Fondations et normes standards. Construction en ossature bois isolé. Finitions haut de gamme. Le prix "clé en main" inclut le gros oeuvre et le second oeuvre (cuisine, peinture, sols...), mais exclut piscine, jardin et clôture.

À partir de

208 000€ TTC

Je la veux !

Construction BBC

Chiffrage estimatif pour : Fondations et normes standards. Construction en bloc coffrant isolant (RT 2020). Finitions haut de gamme. Le prix "clé en main" inclut le gros oeuvre et le second oeuvre (cuisine, peinture, sols...), mais exclut piscine, jardin et clôture.

À partir de

240 000€ TTC

Je la veux !

D'autres maisons qui pourraient vous intéresser