Maison Alliance

Plans de maison moderne

93.03 m2

2

1

Perspective extérieure maison Alliance Archionline

Description

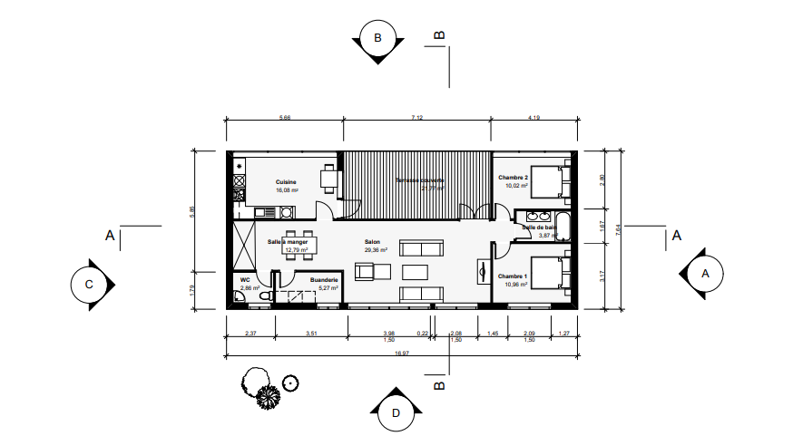
Nous vous proposons cette habitation faisant partie de nos modèles de maisons modernes. Originale et lumineuse, elle est inspirée des maisons containers. La maison plain pied s’adaptera parfaitement à votre vie de famille mais peut également correspondre à une résidence secondaire dans laquelle profiter de ses vacances. Le salon de 29,36 m² est ouvert sur un espace salle à manger de 12,79 m² menant à une cuisine de 16,08 m² séparée par une cloison vitrée style atelier. Cet agencement fait de cet espace un axe central de la maison.
Deux chambres font suite au salon avec salle de bain. La maison possède également une buanderie pour ranger et nettoyer vos affaires. Cette maison est idéale pour une première construction et vous permettra d’accueillir sans problème vos amis pour un repas ou soirée sur la terrasse couverte de 21,77 m². La villa profite d’une très belle luminosité grâce à ses grandes baies vitrées donnant sur le jardin.

Construire cette maison

À partir de 141 000 € TTC

Je veux (presque) la même !

Pourquoi construire avec un architecte ?

Archionline vous permet de vous inspirer parmi plus d'un millier de plans de maisons en 3D afin de découvrir le savoir-faire et les réalisations des architectes. Ces plans sont une base solide pour envisager votre projet. Ils seront ensuite adaptés avec l'architecte créateur en fonction de votre environnement, votre envie et votre budget. L'architecte permet d'avoir un projet où chaque mètre-carré est complètement optimisé tout en respectant votre style de vie, vos envies et vos contraintes. Construire avec un architecte n'est pas forcément plus cher car il saura anticiper les différentes problématiques de votre construction afin d'avoir un projet qui respecte votre budget

Tableau de surfaces

Surface habitable

Surface cuisine :
16.08 m²
Salles de bain :
1
Nombre de chambre :
2
Surface chambre 1 :
10.96 m²
Surface chambre 2 :
10.02 m²

Surface annexe

Terrasse :
21.77 m²

Synthèse

Total surface habitable :
93.03 m²
Emprise au sol :
16,97 m x 7,64 m
Total surface annexe :
21.77 m²

Je veux (presque) la même !

Confiez votre projet

Budget et procédé

Archionline vous offre un chiffrage estimatif pour la construction de cette maison en fonction du procédé constructif et du type de livraison souhaité : auto-construction, clos couvert (hors d'eau, hors d'air) ou clé en main.

Construction classique

Chiffrage estimatif pour : Fondations et normes standards. Construction en brique, parpaing ou béton. Finitions haut de gamme. Le prix "auto-construction" inclut uniquement le coût des matériaux de construction. Il n'inclut pas la main d'oeuvre, piscine, jardin et clôture.

À partir de

90 000€ TTC

Je la veux !

Construction ossature bois

Chiffrage estimatif pour : Fondations et normes standards. Construction en ossature bois isolé. Finitions haut de gamme. Le prix "auto-construction" inclut uniquement le coût des matériaux de construction. Il n'inclut pas la main d'oeuvre, piscine, jardin et clôture.

À partir de

119 000€ TTC

Je la veux !

Construction BBC

Chiffrage estimatif pour : Fondations et normes standards. Construction en bloc coffrant isolant (RT 2020). Finitions haut de gamme. Le prix "auto-construction" inclut uniquement le coût des matériaux de construction. Il n'inclut pas la main d'oeuvre, piscine, jardin et clôture.

À partir de

119 000€ TTC

Je la veux !

Construction classique

Chiffrage estimatif pour : Fondations et normes standards. Construction en brique, parpaing ou béton. Finitions haut de gamme. Le prix "clos couvert" (hors d'eau, hors d'air) inclut le gros oeuvre, mais exclut le second oeuvre, piscine, jardin et clôture.

À partir de

111 000€ TTC

Je la veux !

Construction ossature bois

Chiffrage estimatif pour : Fondations et normes standards. Construction en ossature bois isolé. Finitions haut de gamme. Le prix "clos couvert" (hors d'eau, hors d'air) inclut le gros oeuvre, mais exclut le second oeuvre, piscine, jardin et clôture.

À partir de

121 000€ TTC

Je la veux !

Construction BBC

Chiffrage estimatif pour : Fondations et normes standards. Construction en bloc coffrant isolant (RT 2020). Finitions haut de gamme. Le prix "clos couvert" (hors d'eau, hors d'air) inclut le gros oeuvre, mais exclut le second oeuvre, piscine, jardin et clôture.

À partir de

131 000€ TTC

Je la veux !

Construction classique

Chiffrage estimatif pour : Fondations et normes standards. Construction en brique, parpaing ou béton. Finitions haut de gamme. Le prix "clé en main" inclut le gros oeuvre et le second oeuvre (cuisine, peinture, sols...), mais exclut piscine, jardin et clôture.

À partir de

180 000€ TTC

Je la veux !

Construction ossature bois

Chiffrage estimatif pour : Fondations et normes standards. Construction en ossature bois isolé. Finitions haut de gamme. Le prix "clé en main" inclut le gros oeuvre et le second oeuvre (cuisine, peinture, sols...), mais exclut piscine, jardin et clôture.

À partir de

180 000€ TTC

Je la veux !

Construction BBC

Chiffrage estimatif pour : Fondations et normes standards. Construction en bloc coffrant isolant (RT 2020). Finitions haut de gamme. Le prix "clé en main" inclut le gros oeuvre et le second oeuvre (cuisine, peinture, sols...), mais exclut piscine, jardin et clôture.

À partir de

209 000€ TTC

Je la veux !

D'autres maisons qui pourraient vous intéresser