Villa Lecce

Plans de maison moderne

169.29 m2

3

2

Vue extérieure Villa Lecce Archionline
Vue intérieure Villa Lecce Archionline

Description

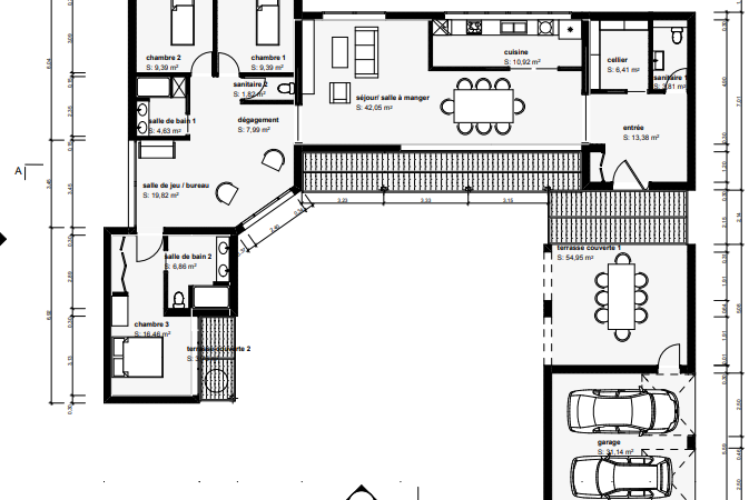
Archionline vous propose une maison contemporaine d’une surface habitable de 169m² de plain-pied.

Cette villa en forme de U est très fonctionnelle. Vous arrivez sous un porche prolongé en terrasse couverte et donnant sur le cœur de la maison : l’espace central aménagé en terrasse ou en jardin selon vos désirs. Depuis l’entrée, vous accéderez facilement à la cuisine agrémentée d’un bar. Le séjour et salle à manger viennent ensuite.

Vous passerez une porte pour accéder aux espaces de nuit. Les deux chambres pour enfant de 9,4m² sont séparées de la suite parentale par un espace de bureau ou de jeux. Cette pièce se trouve au calme et permet de se retirer facilement. Une baie vitrée toute hauteur assure un ensoleillement parfait.

Enfin, dans un souci de fonctionnalité un garage est attenant à l’entrée et vous permet d’y loger deux autos.

N’hésitez plus et inspirez-vous de cette maison d’architecte pour la construction de votre propre maison individuelle. Avec Archionline, trouvez le bon architecte et les bons professionnels pour réaliser votre projet sur-mesure.

Construire cette maison

À partir de 254 000 € TTC

Je veux (presque) la même !

Pourquoi construire avec un architecte ?

Archionline vous permet de vous inspirer parmi plus d'un millier de plans de maisons en 3D afin de découvrir le savoir-faire et les réalisations des architectes. Ces plans sont une base solide pour envisager votre projet. Ils seront ensuite adaptés avec l'architecte créateur en fonction de votre environnement, votre envie et votre budget. L'architecte permet d'avoir un projet où chaque mètre-carré est complètement optimisé tout en respectant votre style de vie, vos envies et vos contraintes. Construire avec un architecte n'est pas forcément plus cher car il saura anticiper les différentes problématiques de votre construction afin d'avoir un projet qui respecte votre budget

Tableau de surfaces

Surface habitable

Surface cuisine :
10.92 m²
Salles de bain :
2
Nombre de chambre :
3
Surface chambre 1 :
9.39 m²
Surface chambre 2 :
9.39 m²
Surface chambre 3 :
16.46 m²

Surface annexe

Garage :
31.14 m²
Terrasse :
58.7 m²

Synthèse

Total surface habitable :
169.29 m²
Emprise au sol :
23.31 m x 21.11 m
Total surface annexe :
89.84 m²

Je veux (presque) la même !

Confiez votre projet

Budget et procédé

Archionline vous offre un chiffrage estimatif pour la construction de cette maison en fonction du procédé constructif et du type de livraison souhaité : auto-construction, clos couvert (hors d'eau, hors d'air) ou clé en main.

Construction classique

Chiffrage estimatif pour : Fondations et normes standards. Construction en brique, parpaing ou béton. Finitions haut de gamme. Le prix "auto-construction" inclut uniquement le coût des matériaux de construction. Il n'inclut pas la main d'oeuvre, piscine, jardin et clôture.

À partir de

177 000€ TTC

Je la veux !

Construction ossature bois

Chiffrage estimatif pour : Fondations et normes standards. Construction en ossature bois isolé. Finitions haut de gamme. Le prix "auto-construction" inclut uniquement le coût des matériaux de construction. Il n'inclut pas la main d'oeuvre, piscine, jardin et clôture.

À partir de

230 000€ TTC

Je la veux !

Construction BBC

Chiffrage estimatif pour : Fondations et normes standards. Construction en bloc coffrant isolant (RT 2020). Finitions haut de gamme. Le prix "auto-construction" inclut uniquement le coût des matériaux de construction. Il n'inclut pas la main d'oeuvre, piscine, jardin et clôture.

À partir de

230 000€ TTC

Je la veux !

Construction classique

Chiffrage estimatif pour : Fondations et normes standards. Construction en brique, parpaing ou béton. Finitions haut de gamme. Le prix "clos couvert" (hors d'eau, hors d'air) inclut le gros oeuvre, mais exclut le second oeuvre, piscine, jardin et clôture.

À partir de

225 000€ TTC

Je la veux !

Construction ossature bois

Chiffrage estimatif pour : Fondations et normes standards. Construction en ossature bois isolé. Finitions haut de gamme. Le prix "clos couvert" (hors d'eau, hors d'air) inclut le gros oeuvre, mais exclut le second oeuvre, piscine, jardin et clôture.

À partir de

243 000€ TTC

Je la veux !

Construction BBC

Chiffrage estimatif pour : Fondations et normes standards. Construction en bloc coffrant isolant (RT 2020). Finitions haut de gamme. Le prix "clos couvert" (hors d'eau, hors d'air) inclut le gros oeuvre, mais exclut le second oeuvre, piscine, jardin et clôture.

À partir de

260 000€ TTC

Je la veux !

Construction classique

Chiffrage estimatif pour : Fondations et normes standards. Construction en brique, parpaing ou béton. Finitions haut de gamme. Le prix "clé en main" inclut le gros oeuvre et le second oeuvre (cuisine, peinture, sols...), mais exclut piscine, jardin et clôture.

À partir de

353 000€ TTC

Je la veux !

Construction ossature bois

Chiffrage estimatif pour : Fondations et normes standards. Construction en ossature bois isolé. Finitions haut de gamme. Le prix "clé en main" inclut le gros oeuvre et le second oeuvre (cuisine, peinture, sols...), mais exclut piscine, jardin et clôture.

À partir de

353 000€ TTC

Je la veux !

Construction BBC

Chiffrage estimatif pour : Fondations et normes standards. Construction en bloc coffrant isolant (RT 2020). Finitions haut de gamme. Le prix "clé en main" inclut le gros oeuvre et le second oeuvre (cuisine, peinture, sols...), mais exclut piscine, jardin et clôture.

À partir de

406 000€ TTC

Je la veux !

D'autres maisons qui pourraient vous intéresser