Maison Titanic

Plans de maison moderne

97.4 m2

3

2

Perspective extérieure maison Titanic
Intérieur maison Titanic
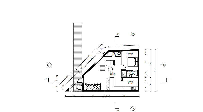
rez de chaussée maison titanic archionline
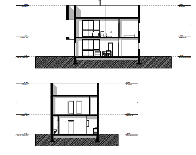
plan de coupe pour maison titanic
façade de la maison titanic

Description

Archionline vous présente une maison d’architecte contemporaine sur deux niveaux, originale par sa forme triangulaire et fonctionnelle par des espaces optimisés. De 97 m², la maison possède trois chambres dont deux à l’étage, et deux séjours.
Vous accèderez à la maison depuis l’extérieur par une passerelle. L’accès donne directement sur un grand séjour de 19 m² environ, avec une cuisine américaine ouverte de 9,4 m². La pièce est très lumineuse grâce aux ouvertures en baies vitrées coulissantes. Une première chambre est présente en rez-de-chaussée pour plus de commodité et d’intimité entre parents et enfants. La chambre possède sa salle de bain privée. Depuis l’entrée, vous trouverez l’escalier vous permettant de rejoindre les deux chambres suivantes à l’étage ainsi qu’une salle de bain commune et un second espace de salon que vous pourrez aménager comme bon vous semble selon vos besoins ou vos envies.
Cette maison contemporaine fonctionnelle est idéale pour les familles aux petits budgets, désirant une maison fonctionnelle et originale.

N’hésitez plus et inspirez-vous de cette maison d’architecte pour la construction de votre propre maison individuelle. Avec Archionline, trouvez le bon architecte et les bons professionnels pour réaliser votre projet sur-mesure.

Construire cette maison

À partir de 163 000 € TTC

Je veux (presque) la même !

Pourquoi construire avec un architecte ?

Archionline vous permet de vous inspirer parmi plus d'un millier de plans de maisons en 3D afin de découvrir le savoir-faire et les réalisations des architectes. Ces plans sont une base solide pour envisager votre projet. Ils seront ensuite adaptés avec l'architecte créateur en fonction de votre environnement, votre envie et votre budget. L'architecte permet d'avoir un projet où chaque mètre-carré est complètement optimisé tout en respectant votre style de vie, vos envies et vos contraintes. Construire avec un architecte n'est pas forcément plus cher car il saura anticiper les différentes problématiques de votre construction afin d'avoir un projet qui respecte votre budget

Tableau de surfaces

Surface habitable

Surface cuisine :
9.4 m²
Salles de bain :
2
Nombre de chambre :
3
Surface chambre 1 :
9.4 m²
Surface chambre 2 :
9.9 m²
Surface chambre 3 :
9.8 m²

Surface annexe

Terrasse non couverte :
54.9 m²

Synthèse

Total surface habitable :
97.4 m²
Emprise au sol :
12.95 m x 7.37 m

Je veux (presque) la même !

Confiez votre projet

Budget et procédé

Archionline vous offre un chiffrage estimatif pour la construction de cette maison en fonction du procédé constructif et du type de livraison souhaité : auto-construction, clos couvert (hors d'eau, hors d'air) ou clé en main.

Construction classique

Chiffrage estimatif pour : Fondations et normes standards. Construction en brique, parpaing ou béton. Finitions haut de gamme. Le prix "auto-construction" inclut uniquement le coût des matériaux de construction. Il n'inclut pas la main d'oeuvre, piscine, jardin et clôture.

À partir de

93 000€ TTC

Je la veux !

Construction ossature bois

Chiffrage estimatif pour : Fondations et normes standards. Construction en ossature bois isolé. Finitions haut de gamme. Le prix "auto-construction" inclut uniquement le coût des matériaux de construction. Il n'inclut pas la main d'oeuvre, piscine, jardin et clôture.

À partir de

123 000€ TTC

Je la veux !

Construction BBC

Chiffrage estimatif pour : Fondations et normes standards. Construction en bloc coffrant isolant (RT 2020). Finitions haut de gamme. Le prix "auto-construction" inclut uniquement le coût des matériaux de construction. Il n'inclut pas la main d'oeuvre, piscine, jardin et clôture.

À partir de

123 000€ TTC

Je la veux !

Construction classique

Chiffrage estimatif pour : Fondations et normes standards. Construction en brique, parpaing ou béton. Finitions haut de gamme. Le prix "clos couvert" (hors d'eau, hors d'air) inclut le gros oeuvre, mais exclut le second oeuvre, piscine, jardin et clôture.

À partir de

113 000€ TTC

Je la veux !

Construction ossature bois

Chiffrage estimatif pour : Fondations et normes standards. Construction en ossature bois isolé. Finitions haut de gamme. Le prix "clos couvert" (hors d'eau, hors d'air) inclut le gros oeuvre, mais exclut le second oeuvre, piscine, jardin et clôture.

À partir de

123 000€ TTC

Je la veux !

Construction BBC

Chiffrage estimatif pour : Fondations et normes standards. Construction en bloc coffrant isolant (RT 2020). Finitions haut de gamme. Le prix "clos couvert" (hors d'eau, hors d'air) inclut le gros oeuvre, mais exclut le second oeuvre, piscine, jardin et clôture.

À partir de

133 000€ TTC

Je la veux !

Construction classique

Chiffrage estimatif pour : Fondations et normes standards. Construction en brique, parpaing ou béton. Finitions haut de gamme. Le prix "clé en main" inclut le gros oeuvre et le second oeuvre (cuisine, peinture, sols...), mais exclut piscine, jardin et clôture.

À partir de

185 000€ TTC

Je la veux !

Construction ossature bois

Chiffrage estimatif pour : Fondations et normes standards. Construction en ossature bois isolé. Finitions haut de gamme. Le prix "clé en main" inclut le gros oeuvre et le second oeuvre (cuisine, peinture, sols...), mais exclut piscine, jardin et clôture.

À partir de

185 000€ TTC

Je la veux !

Construction BBC

Chiffrage estimatif pour : Fondations et normes standards. Construction en bloc coffrant isolant (RT 2020). Finitions haut de gamme. Le prix "clé en main" inclut le gros oeuvre et le second oeuvre (cuisine, peinture, sols...), mais exclut piscine, jardin et clôture.

À partir de

215 000€ TTC

Je la veux !

D'autres maisons qui pourraient vous intéresser