Maison Teddy

Plans de maison moderne

176.8 m2

4

5

Extérieur Archionline maison Teddy
Piscine maison Teddy archionline
Intérieur maison Teddy archionline
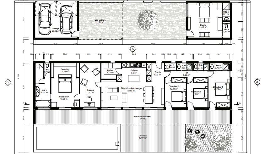
RDC maison teddy archionline
Maison teddy archionline plan de coupe
Façade maison teddy archionline

Description

Nous vous proposons les plans d’une maison d’architecte moderne de 176,8 m². Cette maison, plain-pied, est composée de deux parties distinctes. La première est accessible depuis la rue et abrite le garage et un studio de 23 m² complètement indépendant. L’entrée de la maison fait face au portail principal. Celle-ci permet une bonne fonctionnalité avec de nombreux rangements tout en libérant l’espace commun. La grande pièce à vivre comporte un séjour/ salle à manger et une cuisine ouverte dans un espace total de plus de 40 m². La cuisine possède un petit cellier attenant idéal pour stockage et rangements. Un dégagement à droite dessert une suite parentale luxueuse avec salon ou bureau palier, un bel espace dressing et une salle de bain majestueuse avec douche, baignoire et WC. Les trois autres chambres sont accessibles depuis l’entrée et possèdent chacune une salle de bain attitrée. La maison possède également une magnifique terrasse couverte de 57 m² donnant luminosité et clarté à tous les espaces de la villa. Cette villa contemporaine vous séduira par ses volumes fonctionnels, épurés et conviviaux.

N’hésitez plus et inspirez-vous de cette maison d’architecte pour la construction de votre propre maison individuelle. Avec Archionline, trouvez le bon architecte et les bons professionnels pour réaliser votre projet sur-mesure.

Construire cette maison

À partir de 278 000 € TTC

Je veux (presque) la même !

Pourquoi construire avec un architecte ?

Archionline vous permet de vous inspirer parmi plus d'un millier de plans de maisons en 3D afin de découvrir le savoir-faire et les réalisations des architectes. Ces plans sont une base solide pour envisager votre projet. Ils seront ensuite adaptés avec l'architecte créateur en fonction de votre environnement, votre envie et votre budget. L'architecte permet d'avoir un projet où chaque mètre-carré est complètement optimisé tout en respectant votre style de vie, vos envies et vos contraintes. Construire avec un architecte n'est pas forcément plus cher car il saura anticiper les différentes problématiques de votre construction afin d'avoir un projet qui respecte votre budget

Tableau de surfaces

Surface habitable

Surface cuisine :
9.3 m²
Salles de bain :
5
Nombre de chambre :
4
Surface chambre 1 :
15.86 m²
Surface chambre 2 :
12.08 m²
Surface chambre 3 :
12 m²
Surface chambre 4 :
15.22 m²

Surface annexe

Garage :
29.82 m²
Terrasse :
57 m²
Terrasse non couverte :
35.37 m²

Synthèse

Total surface habitable :
176.8 m²
Emprise au sol :
27.77 m x 17.78 m
Total surface annexe :
153.9 m²

Je veux (presque) la même !

Confiez votre projet

Budget et procédé

Archionline vous offre un chiffrage estimatif pour la construction de cette maison en fonction du procédé constructif et du type de livraison souhaité : auto-construction, clos couvert (hors d'eau, hors d'air) ou clé en main.

Construction classique

Chiffrage estimatif pour : Fondations et normes standards. Construction en brique, parpaing ou béton. Finitions haut de gamme. Le prix "auto-construction" inclut uniquement le coût des matériaux de construction. Il n'inclut pas la main d'oeuvre, piscine, jardin et clôture.

À partir de

183 000€ TTC

Je la veux !

Construction ossature bois

Chiffrage estimatif pour : Fondations et normes standards. Construction en ossature bois isolé. Finitions haut de gamme. Le prix "auto-construction" inclut uniquement le coût des matériaux de construction. Il n'inclut pas la main d'oeuvre, piscine, jardin et clôture.

À partir de

239 000€ TTC

Je la veux !

Construction BBC

Chiffrage estimatif pour : Fondations et normes standards. Construction en bloc coffrant isolant (RT 2020). Finitions haut de gamme. Le prix "auto-construction" inclut uniquement le coût des matériaux de construction. Il n'inclut pas la main d'oeuvre, piscine, jardin et clôture.

À partir de

239 000€ TTC

Je la veux !

Construction classique

Chiffrage estimatif pour : Fondations et normes standards. Construction en brique, parpaing ou béton. Finitions haut de gamme. Le prix "clos couvert" (hors d'eau, hors d'air) inclut le gros oeuvre, mais exclut le second oeuvre, piscine, jardin et clôture.

À partir de

232 000€ TTC

Je la veux !

Construction ossature bois

Chiffrage estimatif pour : Fondations et normes standards. Construction en ossature bois isolé. Finitions haut de gamme. Le prix "clos couvert" (hors d'eau, hors d'air) inclut le gros oeuvre, mais exclut le second oeuvre, piscine, jardin et clôture.

À partir de

251 000€ TTC

Je la veux !

Construction BBC

Chiffrage estimatif pour : Fondations et normes standards. Construction en bloc coffrant isolant (RT 2020). Finitions haut de gamme. Le prix "clos couvert" (hors d'eau, hors d'air) inclut le gros oeuvre, mais exclut le second oeuvre, piscine, jardin et clôture.

À partir de

270 000€ TTC

Je la veux !

Construction classique

Chiffrage estimatif pour : Fondations et normes standards. Construction en brique, parpaing ou béton. Finitions haut de gamme. Le prix "clé en main" inclut le gros oeuvre et le second oeuvre (cuisine, peinture, sols...), mais exclut piscine, jardin et clôture.

À partir de

366 000€ TTC

Je la veux !

Construction ossature bois

Chiffrage estimatif pour : Fondations et normes standards. Construction en ossature bois isolé. Finitions haut de gamme. Le prix "clé en main" inclut le gros oeuvre et le second oeuvre (cuisine, peinture, sols...), mais exclut piscine, jardin et clôture.

À partir de

366 000€ TTC

Je la veux !

Construction BBC

Chiffrage estimatif pour : Fondations et normes standards. Construction en bloc coffrant isolant (RT 2020). Finitions haut de gamme. Le prix "clé en main" inclut le gros oeuvre et le second oeuvre (cuisine, peinture, sols...), mais exclut piscine, jardin et clôture.

À partir de

421 000€ TTC

Je la veux !

D'autres maisons qui pourraient vous intéresser