Maison Noé

Plans de maison moderne

161.95 m2

4

2

Perspective Archionline maison Noé
Archionline Maison Noé
Plan maison Noé Archionline
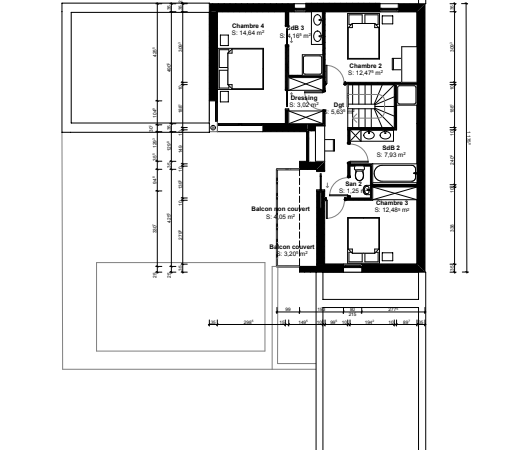
Plan étage maison Noé Archionline
Plan de coupe Maison noé Archionline
Maison noé Archionline façade

Description

Archionline vous présente une maison d’architecte contemporaine aux espaces optimisés mais toutefois généreuse et fonctionnelle. D’une surface de 162 m², la maison sur deux niveaux possède quatre chambres, deux espaces de séjour ainsi qu’un garage.
Vous accèderez à la maison par un véritable espace d’entrée avec vestiaire, donnant directement accès au grand séjour, à une première chambre, parfaite pour vos invités. La cuisine est séparée d’une porte coulissante afin d’éviter toute gène liée à son utilisation, vaste de 15,5m², elle possède également une buanderie et donne accès au garage. La maison conçue en « L » s’oriente autour d’une terrasse centrale avec la possibilité d’aménager une piscine. La seconde aile de la maison est conssacrée aux séjours comprenant un salon et une salle à manger. Les deux espaces sont connectés entre eux, seulement séparés par une cheminée centrale, et sont lumineux grâce aux ouvertures en baies vitrées coulissantes toute hauteur. Vous pourrez donc passer sur la terrasse facilement.
Depuis l’escalier situé dans l’entrée, vous monterez à l’étage. Il se compose de deux chambres de 12,5 m² et d’une salle de bain commune ainsi que d’une suite parentale avec dressing et salle d’eau privée.
Cette maison contemporaine fonctionnelle est idéale pour les familles désirant de beaux volumes fonctionnels.

Inspirez-vous du plan de cette maison pleine de charme et de tradition et constituez votre avant-projet avec nos architectes pour construire la maison d’architecte dont vous rêvez.

Construire cette maison

À partir de 255 000 € TTC

Je veux (presque) la même !

Pourquoi construire avec un architecte ?

Archionline vous permet de vous inspirer parmi plus d'un millier de plans de maisons en 3D afin de découvrir le savoir-faire et les réalisations des architectes. Ces plans sont une base solide pour envisager votre projet. Ils seront ensuite adaptés avec l'architecte créateur en fonction de votre environnement, votre envie et votre budget. L'architecte permet d'avoir un projet où chaque mètre-carré est complètement optimisé tout en respectant votre style de vie, vos envies et vos contraintes. Construire avec un architecte n'est pas forcément plus cher car il saura anticiper les différentes problématiques de votre construction afin d'avoir un projet qui respecte votre budget

Tableau de surfaces

Surface habitable

Surface cuisine :
15.56 m²
Salles de bain :
2
Nombre de chambre :
4
Surface chambre 1 :
12.34 m²
Surface chambre 2 :
12.47 m²
Surface chambre 3 :
12.48 m²
Surface chambre 4 :
14.64 m²

Surface annexe

Garage :
28.1 m²
Terrasse :
3.2 m²
Terrasse non couverte :
82.29 m²

Synthèse

Total surface habitable :
161.95 m²
Emprise au sol :
20m x 16m
Total surface annexe :
31.3 m²

Je veux (presque) la même !

Confiez votre projet

Budget et procédé

Archionline vous offre un chiffrage estimatif pour la construction de cette maison en fonction du procédé constructif et du type de livraison souhaité : auto-construction, clos couvert (hors d'eau, hors d'air) ou clé en main.

Construction classique

Chiffrage estimatif pour : Fondations et normes standards. Construction en brique, parpaing ou béton. Finitions haut de gamme. Le prix "auto-construction" inclut uniquement le coût des matériaux de construction. Il n'inclut pas la main d'oeuvre, piscine, jardin et clôture.

À partir de

164 000€ TTC

Je la veux !

Construction ossature bois

Chiffrage estimatif pour : Fondations et normes standards. Construction en ossature bois isolé. Finitions haut de gamme. Le prix "auto-construction" inclut uniquement le coût des matériaux de construction. Il n'inclut pas la main d'oeuvre, piscine, jardin et clôture.

À partir de

215 000€ TTC

Je la veux !

Construction BBC

Chiffrage estimatif pour : Fondations et normes standards. Construction en bloc coffrant isolant (RT 2020). Finitions haut de gamme. Le prix "auto-construction" inclut uniquement le coût des matériaux de construction. Il n'inclut pas la main d'oeuvre, piscine, jardin et clôture.

À partir de

215 000€ TTC

Je la veux !

Construction classique

Chiffrage estimatif pour : Fondations et normes standards. Construction en brique, parpaing ou béton. Finitions haut de gamme. Le prix "clos couvert" (hors d'eau, hors d'air) inclut le gros oeuvre, mais exclut le second oeuvre, piscine, jardin et clôture.

À partir de

206 000€ TTC

Je la veux !

Construction ossature bois

Chiffrage estimatif pour : Fondations et normes standards. Construction en ossature bois isolé. Finitions haut de gamme. Le prix "clos couvert" (hors d'eau, hors d'air) inclut le gros oeuvre, mais exclut le second oeuvre, piscine, jardin et clôture.

À partir de

223 000€ TTC

Je la veux !

Construction BBC

Chiffrage estimatif pour : Fondations et normes standards. Construction en bloc coffrant isolant (RT 2020). Finitions haut de gamme. Le prix "clos couvert" (hors d'eau, hors d'air) inclut le gros oeuvre, mais exclut le second oeuvre, piscine, jardin et clôture.

À partir de

240 000€ TTC

Je la veux !

Construction classique

Chiffrage estimatif pour : Fondations et normes standards. Construction en brique, parpaing ou béton. Finitions haut de gamme. Le prix "clé en main" inclut le gros oeuvre et le second oeuvre (cuisine, peinture, sols...), mais exclut piscine, jardin et clôture.

À partir de

328 000€ TTC

Je la veux !

Construction ossature bois

Chiffrage estimatif pour : Fondations et normes standards. Construction en ossature bois isolé. Finitions haut de gamme. Le prix "clé en main" inclut le gros oeuvre et le second oeuvre (cuisine, peinture, sols...), mais exclut piscine, jardin et clôture.

À partir de

328 000€ TTC

Je la veux !

Construction BBC

Chiffrage estimatif pour : Fondations et normes standards. Construction en bloc coffrant isolant (RT 2020). Finitions haut de gamme. Le prix "clé en main" inclut le gros oeuvre et le second oeuvre (cuisine, peinture, sols...), mais exclut piscine, jardin et clôture.

À partir de

379 000€ TTC

Je la veux !

D'autres maisons qui pourraient vous intéresser