Villa Tuchan

Maison traditionnelle

125.74 m2

3

2

Plan de perspective Villa Tuchan
Salle à manger de la villa Tuchan
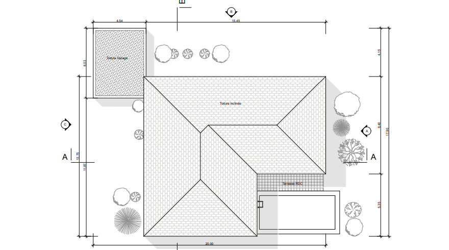
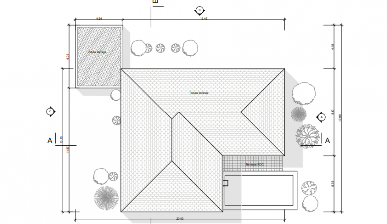
Plan de villa Tuchan
Coupe Villa Tuchan
Plan de façade 1 Tuchan
Façade 2 Tuchan

Description

Nous vous présentons une maison plain pied de 125,74 m² possédant trois chambres, qui s’intègre parfaitement dans toutes les régions.

Dès l’entrée, couverte par un porche, une première porte mène au garage de 23,77 m² en traversant un cellier de 10,42 m². En face un couloir dessert les espaces de nuit comprenant les trois chambres dont une suite parentale avec salle de bain privée ainsi qu’une salle de bain commune spacieuse avec baignoire. L’entrée s’ouvre également sur l’espace de vie composé d’un grand salon / salle à manger de 40,86 m² ouvert sur la cuisine de 9,15 m². Cette grande pièce possède un accès direct sur la terrasse, idéal pour cuisiner entre amis et en famille.

Maison familiale et traditionnelle pour les grandes familles qui ont envie de charme, cette construction peut devenir votre future maison d’architecte. Laissez-vous inspirer et commencez à créer votre projet avec Archionline.

Construire cette maison

À partir de 176 000 € TTC

Je veux (presque) la même !

Pourquoi construire avec un architecte ?

Archionline vous permet de vous inspirer parmi plus d'un millier de plans de maisons en 3D afin de découvrir le savoir-faire et les réalisations des architectes. Ces plans sont une base solide pour envisager votre projet. Ils seront ensuite adaptés avec l'architecte créateur en fonction de votre environnement, votre envie et votre budget. L'architecte permet d'avoir un projet où chaque mètre-carré est complètement optimisé tout en respectant votre style de vie, vos envies et vos contraintes. Construire avec un architecte n'est pas forcément plus cher car il saura anticiper les différentes problématiques de votre construction afin d'avoir un projet qui respecte votre budget

Tableau de surfaces

Surface habitable

Surface cuisine :
9.15 m²
Salles de bain :
2
Nombre de chambre :
3
Surface chambre 1 :
13.62 m²
Surface chambre 2 :
13.09 m²
Surface chambre 3 :
11.63 m²

Surface annexe

Garage :
23.77 m²
Terrasse :
18.99 m²
Terrasse non couverte :
9.79 m²

Synthèse

Total surface habitable :
125.74 m²
Emprise au sol :
17.90 m x 20 m
Total surface annexe :
56.5 m²

Je veux (presque) la même !

Confiez votre projet

Budget et procédé

Archionline vous offre un chiffrage estimatif pour la construction de cette maison en fonction du procédé constructif et du type de livraison souhaité : auto-construction, clos couvert (hors d'eau, hors d'air) ou clé en main.

Construction classique

Chiffrage estimatif pour : Fondations et normes standards. Construction en brique, parpaing ou béton. Finitions haut de gamme. Le prix "auto-construction" inclut uniquement le coût des matériaux de construction. Il n'inclut pas la main d'oeuvre, piscine, jardin et clôture.

À partir de

123 000€ TTC

Je la veux !

Construction ossature bois

Chiffrage estimatif pour : Fondations et normes standards. Construction en ossature bois isolé. Finitions haut de gamme. Le prix "auto-construction" inclut uniquement le coût des matériaux de construction. Il n'inclut pas la main d'oeuvre, piscine, jardin et clôture.

À partir de

161 000€ TTC

Je la veux !

Construction BBC

Chiffrage estimatif pour : Fondations et normes standards. Construction en bloc coffrant isolant (RT 2020). Finitions haut de gamme. Le prix "auto-construction" inclut uniquement le coût des matériaux de construction. Il n'inclut pas la main d'oeuvre, piscine, jardin et clôture.

À partir de

161 000€ TTC

Je la veux !

Construction classique

Chiffrage estimatif pour : Fondations et normes standards. Construction en brique, parpaing ou béton. Finitions haut de gamme. Le prix "clos couvert" (hors d'eau, hors d'air) inclut le gros oeuvre, mais exclut le second oeuvre, piscine, jardin et clôture.

À partir de

156 000€ TTC

Je la veux !

Construction ossature bois

Chiffrage estimatif pour : Fondations et normes standards. Construction en ossature bois isolé. Finitions haut de gamme. Le prix "clos couvert" (hors d'eau, hors d'air) inclut le gros oeuvre, mais exclut le second oeuvre, piscine, jardin et clôture.

À partir de

168 000€ TTC

Je la veux !

Construction BBC

Chiffrage estimatif pour : Fondations et normes standards. Construction en bloc coffrant isolant (RT 2020). Finitions haut de gamme. Le prix "clos couvert" (hors d'eau, hors d'air) inclut le gros oeuvre, mais exclut le second oeuvre, piscine, jardin et clôture.

À partir de

181 000€ TTC

Je la veux !

Construction classique

Chiffrage estimatif pour : Fondations et normes standards. Construction en brique, parpaing ou béton. Finitions haut de gamme. Le prix "clé en main" inclut le gros oeuvre et le second oeuvre (cuisine, peinture, sols...), mais exclut piscine, jardin et clôture.

À partir de

246 000€ TTC

Je la veux !

Construction ossature bois

Chiffrage estimatif pour : Fondations et normes standards. Construction en ossature bois isolé. Finitions haut de gamme. Le prix "clé en main" inclut le gros oeuvre et le second oeuvre (cuisine, peinture, sols...), mais exclut piscine, jardin et clôture.

À partir de

246 000€ TTC

Je la veux !

Construction BBC

Chiffrage estimatif pour : Fondations et normes standards. Construction en bloc coffrant isolant (RT 2020). Finitions haut de gamme. Le prix "clé en main" inclut le gros oeuvre et le second oeuvre (cuisine, peinture, sols...), mais exclut piscine, jardin et clôture.

À partir de

284 000€ TTC

Je la veux !

D'autres maisons qui pourraient vous intéresser