Maison Sonia

Maisons bois

88.63 m2

3

2

Maison Sonia perspective extérieure Archionline
Maison Sonia intérieur salon Archionline

Description

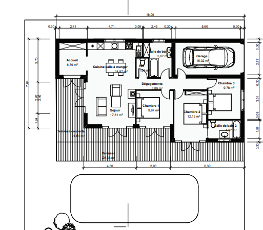
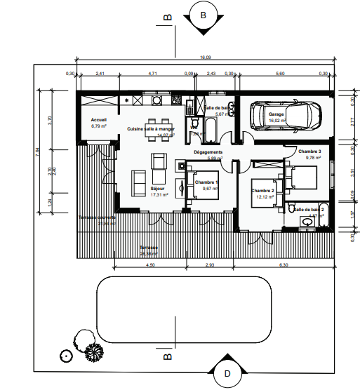
Maison contemporaine en bois de 88,63 m², cette villa est idéale pour les terrains réduits ou les petits budgets. Avec son architecture simple et fonctionnelle, ce plan de maison en bois et plain-pied saura vous séduire grâce à ses espaces bien pensés. Cette maison garantit fonctionnalité et grande pièce à vivre combinant cuisine salle à manger et séjour dans un espace d’environ 35 m². Un couloir menant aux 3 chambres dont une suite parentale de 12,12 m² dessert également le garage de 16,02 m² idéal pour ranger toutes vos affaires et mettre votre voiture à l’abri. Avec ses grandes baies vitrées, vous serez émerveillé par la vue imprenable sur l’extérieur.

N’hésitez plus et inspirez-vous de cette maison d’architecte pour la construction de votre propre maison individuelle. Avec Archionline, trouvez le bon architecte et les bons professionnels pour réaliser votre projet sur-mesure.

Construire cette maison

À partir de 151 000 € TTC

Je veux (presque) la même !

Pourquoi construire avec un architecte ?

Archionline vous permet de vous inspirer parmi plus d'un millier de plans de maisons en 3D afin de découvrir le savoir-faire et les réalisations des architectes. Ces plans sont une base solide pour envisager votre projet. Ils seront ensuite adaptés avec l'architecte créateur en fonction de votre environnement, votre envie et votre budget. L'architecte permet d'avoir un projet où chaque mètre-carré est complètement optimisé tout en respectant votre style de vie, vos envies et vos contraintes. Construire avec un architecte n'est pas forcément plus cher car il saura anticiper les différentes problématiques de votre construction afin d'avoir un projet qui respecte votre budget

Tableau de surfaces

Surface habitable

Surface cuisine :
14.87 m²
Salles de bain :
2
Nombre de chambre :
3
Surface chambre 1 :
9.67 m²
Surface chambre 2 :
12.12 m²
Surface chambre 3 :
9.78 m²

Surface annexe

Garage :
16.02 m²
Terrasse :
21.84 m²
Terrasse non couverte :
26.36 m²

Synthèse

Total surface habitable :
88.63 m²
Emprise au sol :
16,14 m x 11 m
Total surface annexe :
64.22 m²

Je veux (presque) la même !

Confiez votre projet

Budget et procédé

Archionline vous offre un chiffrage estimatif pour la construction de cette maison en fonction du procédé constructif et du type de livraison souhaité : auto-construction, clos couvert (hors d'eau, hors d'air) ou clé en main.

Construction classique

Chiffrage estimatif pour : Fondations et normes standards. Construction en brique, parpaing ou béton. Finitions haut de gamme. Le prix "auto-construction" inclut uniquement le coût des matériaux de construction. Il n'inclut pas la main d'oeuvre, piscine, jardin et clôture.

À partir de

88 000€ TTC

Je la veux !

Construction ossature bois

Chiffrage estimatif pour : Fondations et normes standards. Construction en ossature bois isolé. Finitions haut de gamme. Le prix "auto-construction" inclut uniquement le coût des matériaux de construction. Il n'inclut pas la main d'oeuvre, piscine, jardin et clôture.

À partir de

114 000€ TTC

Je la veux !

Construction BBC

Chiffrage estimatif pour : Fondations et normes standards. Construction en bloc coffrant isolant (RT 2020). Finitions haut de gamme. Le prix "auto-construction" inclut uniquement le coût des matériaux de construction. Il n'inclut pas la main d'oeuvre, piscine, jardin et clôture.

À partir de

114 000€ TTC

Je la veux !

Construction classique

Chiffrage estimatif pour : Fondations et normes standards. Construction en brique, parpaing ou béton. Finitions haut de gamme. Le prix "clos couvert" (hors d'eau, hors d'air) inclut le gros oeuvre, mais exclut le second oeuvre, piscine, jardin et clôture.

À partir de

111 000€ TTC

Je la veux !

Construction ossature bois

Chiffrage estimatif pour : Fondations et normes standards. Construction en ossature bois isolé. Finitions haut de gamme. Le prix "clos couvert" (hors d'eau, hors d'air) inclut le gros oeuvre, mais exclut le second oeuvre, piscine, jardin et clôture.

À partir de

120 000€ TTC

Je la veux !

Construction BBC

Chiffrage estimatif pour : Fondations et normes standards. Construction en bloc coffrant isolant (RT 2020). Finitions haut de gamme. Le prix "clos couvert" (hors d'eau, hors d'air) inclut le gros oeuvre, mais exclut le second oeuvre, piscine, jardin et clôture.

À partir de

129 000€ TTC

Je la veux !

Construction classique

Chiffrage estimatif pour : Fondations et normes standards. Construction en brique, parpaing ou béton. Finitions haut de gamme. Le prix "clé en main" inclut le gros oeuvre et le second oeuvre (cuisine, peinture, sols...), mais exclut piscine, jardin et clôture.

À partir de

175 000€ TTC

Je la veux !

Construction ossature bois

Chiffrage estimatif pour : Fondations et normes standards. Construction en ossature bois isolé. Finitions haut de gamme. Le prix "clé en main" inclut le gros oeuvre et le second oeuvre (cuisine, peinture, sols...), mais exclut piscine, jardin et clôture.

À partir de

175 000€ TTC

Je la veux !

Construction BBC

Chiffrage estimatif pour : Fondations et normes standards. Construction en bloc coffrant isolant (RT 2020). Finitions haut de gamme. Le prix "clé en main" inclut le gros oeuvre et le second oeuvre (cuisine, peinture, sols...), mais exclut piscine, jardin et clôture.

À partir de

201 000€ TTC

Je la veux !

D'autres maisons qui pourraient vous intéresser