Maison Pataya

Maisons bois

97.88 m2

2

2

Extérieur maison Pattaya Archionline
Intérieur maison Pattaya Archionline

Description

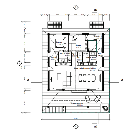
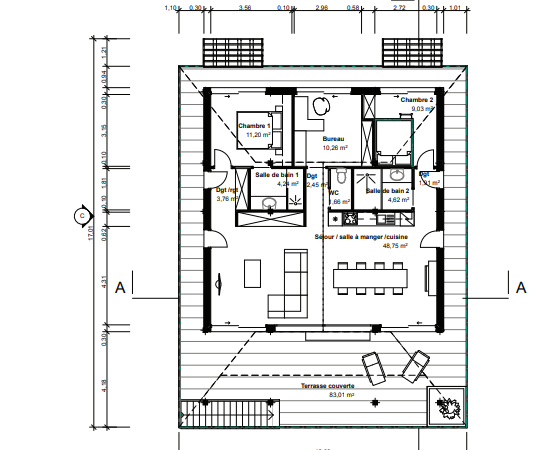
Cette maison en bois de 97,88 m² sur pilotis s’inspire des belles maisons coloniales et pagode des pays chauds.
Vous pouvez accéder à la maison par un escalier menant à la terrasse entourant celle ci. La façade principale toute vitrée donne sur la terrasse. L’entrée peut se faire de toute part de la villa grâce à de nombreuses ouvertures et permet une grande fluidité de circulation.
La grande pièce à vivre de 48 m² est spacieuse et donne accès sur l’extérieur grâce à ses grande baies vitrées. Vous pourrez d’ailleurs prolonger votre salon en installant quelques fauteuils et quelques lumières sur la terrasse pour des soirées entre amis ou pour profiter du soleil en journée. Plusieurs dégagements desservent les deux chambres,
Un bureau et une salle de bain avec WC séparé, plus en retrait et tout en restant accessible depuis les lieux de vie commune. Une des chambre possède sa salle de bain privé de 4,24 m², tandis que l’autre à un couchage en mezzanine laissant un bel espace d’aménagement en dessous de celle ci.
Inspirez-vous du plan de cette maison pleine de charme et de tradition et constituez votre avant-projet avec nos architectes pour construire la maison d’architecte dont vous rêvez.

Construire cette maison

À partir de 163 000 € TTC

Je veux (presque) la même !

Pourquoi construire avec un architecte ?

Archionline vous permet de vous inspirer parmi plus d'un millier de plans de maisons en 3D afin de découvrir le savoir-faire et les réalisations des architectes. Ces plans sont une base solide pour envisager votre projet. Ils seront ensuite adaptés avec l'architecte créateur en fonction de votre environnement, votre envie et votre budget. L'architecte permet d'avoir un projet où chaque mètre-carré est complètement optimisé tout en respectant votre style de vie, vos envies et vos contraintes. Construire avec un architecte n'est pas forcément plus cher car il saura anticiper les différentes problématiques de votre construction afin d'avoir un projet qui respecte votre budget

Tableau de surfaces

Surface habitable

Surface cuisine :
9 m²
Salles de bain :
2
Nombre de chambre :
2
Surface chambre 1 :
11.2 m²
Surface chambre 2 :
9.03 m²

Surface annexe

Terrasse :
83.01 m²

Synthèse

Total surface habitable :
97.88 m²
Emprise au sol :
17 m x 12.63 m
Total surface annexe :
83.01 m²

Je veux (presque) la même !

Confiez votre projet

Budget et procédé

Archionline vous offre un chiffrage estimatif pour la construction de cette maison en fonction du procédé constructif et du type de livraison souhaité : auto-construction, clos couvert (hors d'eau, hors d'air) ou clé en main.

Construction classique

Chiffrage estimatif pour : Fondations et normes standards. Construction en brique, parpaing ou béton. Finitions haut de gamme. Le prix "auto-construction" inclut uniquement le coût des matériaux de construction. Il n'inclut pas la main d'oeuvre, piscine, jardin et clôture.

À partir de

95 000€ TTC

Je la veux !

Construction ossature bois

Chiffrage estimatif pour : Fondations et normes standards. Construction en ossature bois isolé. Finitions haut de gamme. Le prix "auto-construction" inclut uniquement le coût des matériaux de construction. Il n'inclut pas la main d'oeuvre, piscine, jardin et clôture.

À partir de

124 000€ TTC

Je la veux !

Construction BBC

Chiffrage estimatif pour : Fondations et normes standards. Construction en bloc coffrant isolant (RT 2020). Finitions haut de gamme. Le prix "auto-construction" inclut uniquement le coût des matériaux de construction. Il n'inclut pas la main d'oeuvre, piscine, jardin et clôture.

À partir de

124 000€ TTC

Je la veux !

Construction classique

Chiffrage estimatif pour : Fondations et normes standards. Construction en brique, parpaing ou béton. Finitions haut de gamme. Le prix "clos couvert" (hors d'eau, hors d'air) inclut le gros oeuvre, mais exclut le second oeuvre, piscine, jardin et clôture.

À partir de

121 000€ TTC

Je la veux !

Construction ossature bois

Chiffrage estimatif pour : Fondations et normes standards. Construction en ossature bois isolé. Finitions haut de gamme. Le prix "clos couvert" (hors d'eau, hors d'air) inclut le gros oeuvre, mais exclut le second oeuvre, piscine, jardin et clôture.

À partir de

130 000€ TTC

Je la veux !

Construction BBC

Chiffrage estimatif pour : Fondations et normes standards. Construction en bloc coffrant isolant (RT 2020). Finitions haut de gamme. Le prix "clos couvert" (hors d'eau, hors d'air) inclut le gros oeuvre, mais exclut le second oeuvre, piscine, jardin et clôture.

À partir de

140 000€ TTC

Je la veux !

Construction classique

Chiffrage estimatif pour : Fondations et normes standards. Construction en brique, parpaing ou béton. Finitions haut de gamme. Le prix "clé en main" inclut le gros oeuvre et le second oeuvre (cuisine, peinture, sols...), mais exclut piscine, jardin et clôture.

À partir de

189 000€ TTC

Je la veux !

Construction ossature bois

Chiffrage estimatif pour : Fondations et normes standards. Construction en ossature bois isolé. Finitions haut de gamme. Le prix "clé en main" inclut le gros oeuvre et le second oeuvre (cuisine, peinture, sols...), mais exclut piscine, jardin et clôture.

À partir de

189 000€ TTC

Je la veux !

Construction BBC

Chiffrage estimatif pour : Fondations et normes standards. Construction en bloc coffrant isolant (RT 2020). Finitions haut de gamme. Le prix "clé en main" inclut le gros oeuvre et le second oeuvre (cuisine, peinture, sols...), mais exclut piscine, jardin et clôture.

À partir de

218 000€ TTC

Je la veux !

D'autres maisons qui pourraient vous intéresser