Villa Vitoria

Plans de maison moderne

161.87 m2

3

3

Perspective de la Villa Vitoria
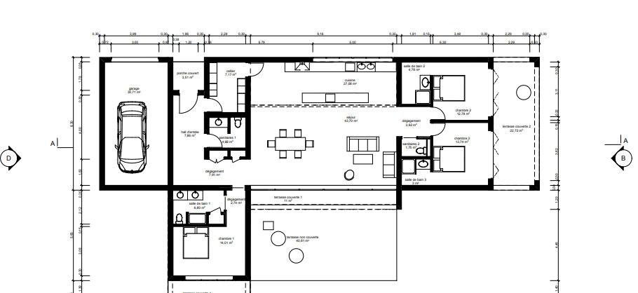
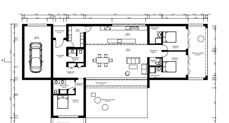
Plan villa Vitoria
Plan de façade Villa Vitoria
Façade 2 Vitoria
Plan de coupe Vitoria

Description

Nous vous proposons une belle maison contemporaine de 162 m² de plain-pied.

Vous pénétrez par une entrée à proximité du garage, dans l’espace séjour et salle à manger séparé d’une grande cuisine ouverte pour le plus grand bonheur de vos amis. Un vrai séjour donnant sur une terrasse vous offre un large espace de vie commune de 43 m² idéal pour les repas entre amis. Les trois chambres sont reparties de part et d’autre de la maison. La première chambre est proche de l’entrée, en retrait des espaces communs, elle possède sa propre salle de bain et une terrasse. Les deux autres chambres ont également une grande terrasse privative.

Un garage attenant à la maison, permet d’abriter deux voitures et d’y entreposer du matériel, parfait pour les bricoleurs ou les jardiniers en herbe ! Cette maison conviviale et originale vous ravira si vous aimez les grands volumes architecturaux. Vous pouvez obtenir le plan de maison complet dés à présent et constituer votre avant-projet pour construire la maison d’architecte dont vous rêvez ou vous inspirez.

Découvrez également notre sélection de plans villas contemporaines.

Construire cette maison

À partir de 250 000 € TTC

Je veux (presque) la même !

Pourquoi construire avec un architecte ?

Archionline vous permet de vous inspirer parmi plus d'un millier de plans de maisons en 3D afin de découvrir le savoir-faire et les réalisations des architectes. Ces plans sont une base solide pour envisager votre projet. Ils seront ensuite adaptés avec l'architecte créateur en fonction de votre environnement, votre envie et votre budget. L'architecte permet d'avoir un projet où chaque mètre-carré est complètement optimisé tout en respectant votre style de vie, vos envies et vos contraintes. Construire avec un architecte n'est pas forcément plus cher car il saura anticiper les différentes problématiques de votre construction afin d'avoir un projet qui respecte votre budget

Tableau de surfaces

Surface habitable

Surface cuisine :
27.08 m²
Salles de bain :
3
Nombre de chambre :
3
Surface chambre 1 :
14 m²
Surface chambre 2 :
12.78 m²
Surface chambre 3 :
13.74 m²

Surface annexe

Garage :
30.71 m²
Terrasse :
35.98 m²
Terrasse non couverte :
40.81 m²

Synthèse

Total surface habitable :
161.87 m²
Emprise au sol :
27.53 m x 15.95 m
Total surface annexe :
66.69 m²

Je veux (presque) la même !

Confiez votre projet

Budget et procédé

Archionline vous offre un chiffrage estimatif pour la construction de cette maison en fonction du procédé constructif et du type de livraison souhaité : auto-construction, clos couvert (hors d'eau, hors d'air) ou clé en main.

Construction classique

Chiffrage estimatif pour : Fondations et normes standards. Construction en brique, parpaing ou béton. Finitions haut de gamme. Le prix "auto-construction" inclut uniquement le coût des matériaux de construction. Il n'inclut pas la main d'oeuvre, piscine, jardin et clôture.

À partir de

168 000€ TTC

Je la veux !

Construction ossature bois

Chiffrage estimatif pour : Fondations et normes standards. Construction en ossature bois isolé. Finitions haut de gamme. Le prix "auto-construction" inclut uniquement le coût des matériaux de construction. Il n'inclut pas la main d'oeuvre, piscine, jardin et clôture.

À partir de

219 000€ TTC

Je la veux !

Construction BBC

Chiffrage estimatif pour : Fondations et normes standards. Construction en bloc coffrant isolant (RT 2020). Finitions haut de gamme. Le prix "auto-construction" inclut uniquement le coût des matériaux de construction. Il n'inclut pas la main d'oeuvre, piscine, jardin et clôture.

À partir de

219 000€ TTC

Je la veux !

Construction classique

Chiffrage estimatif pour : Fondations et normes standards. Construction en brique, parpaing ou béton. Finitions haut de gamme. Le prix "clos couvert" (hors d'eau, hors d'air) inclut le gros oeuvre, mais exclut le second oeuvre, piscine, jardin et clôture.

À partir de

212 000€ TTC

Je la veux !

Construction ossature bois

Chiffrage estimatif pour : Fondations et normes standards. Construction en ossature bois isolé. Finitions haut de gamme. Le prix "clos couvert" (hors d'eau, hors d'air) inclut le gros oeuvre, mais exclut le second oeuvre, piscine, jardin et clôture.

À partir de

229 000€ TTC

Je la veux !

Construction BBC

Chiffrage estimatif pour : Fondations et normes standards. Construction en bloc coffrant isolant (RT 2020). Finitions haut de gamme. Le prix "clos couvert" (hors d'eau, hors d'air) inclut le gros oeuvre, mais exclut le second oeuvre, piscine, jardin et clôture.

À partir de

246 000€ TTC

Je la veux !

Construction classique

Chiffrage estimatif pour : Fondations et normes standards. Construction en brique, parpaing ou béton. Finitions haut de gamme. Le prix "clé en main" inclut le gros oeuvre et le second oeuvre (cuisine, peinture, sols...), mais exclut piscine, jardin et clôture.

À partir de

335 000€ TTC

Je la veux !

Construction ossature bois

Chiffrage estimatif pour : Fondations et normes standards. Construction en ossature bois isolé. Finitions haut de gamme. Le prix "clé en main" inclut le gros oeuvre et le second oeuvre (cuisine, peinture, sols...), mais exclut piscine, jardin et clôture.

À partir de

335 000€ TTC

Je la veux !

Construction BBC

Chiffrage estimatif pour : Fondations et normes standards. Construction en bloc coffrant isolant (RT 2020). Finitions haut de gamme. Le prix "clé en main" inclut le gros oeuvre et le second oeuvre (cuisine, peinture, sols...), mais exclut piscine, jardin et clôture.

À partir de

386 000€ TTC

Je la veux !

D'autres maisons qui pourraient vous intéresser