Villa MVR 03

Plans de maison moderne

167.02 m2

2

2

MVR 03 archionline extérieur
MVR 03 intérieur archionline
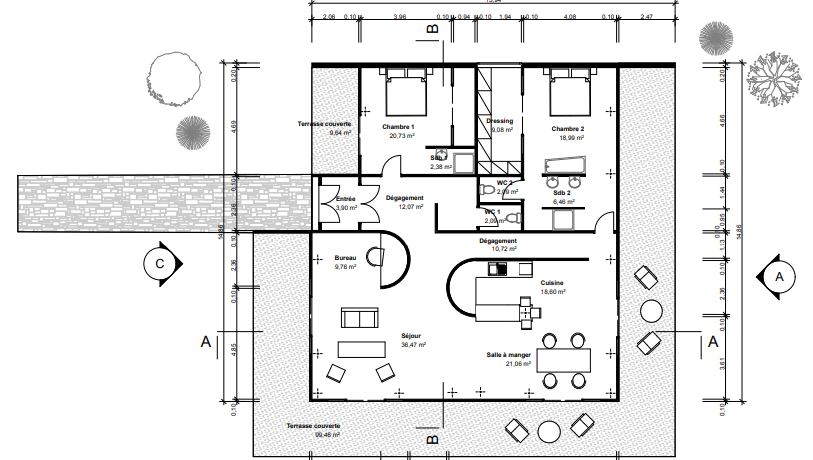
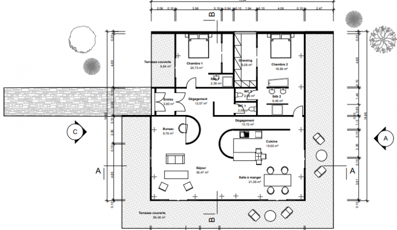
RDC villa mvr 03 archionline
Façade mvr 03 archionline
Villa mvr03 archionline

Description

Archionline vous présente une maison contemporaine épurée de 167,02 m².

La villa est un édifice indépendant conçu comme un carré de verre habitable. L’entrée se fait par une avancée de plusieurs dalles ou grandes marches. La maison ne possède pas d’étage et est complètement ouverte sur le jardin.

Le toit plat, rappelle la ligne d’horizon et les marches autour de la maison. De là, on accède à une entrée telle un sas, qui débouche sur un dégagement spacieux menant à différents espaces distincts. Une première chambre avec salle de bain et dressing de 20,73 m² est accessible dès l’entrée.

Des murs courbes incitent à aller vers l’espace de vie commune comprenant un séjour de 36,47 m², une salle à manger de 21,06 m² , une cuisine de 18,60 m² ainsi qu’un espace bureau de 9,76 m², le tout complètement ouvert et orienté vers l’extérieur. Un dégagement situé derrière la cuisine mène à la deuxième chambre de 18,99 m² qui comporte sa salle de bain de 6,46 m² avec baignoire, douche et sanitaires séparés. La chambre possède également un très grand dressing personnel de 9,08 m².

La maison possède un toit plat dépassant de plusieurs mètres qui forme une coursive ou grande terrasse entourant la villa.

Résolument moderne, cette maison vous séduira par son originalité et ses volumes architecturaux conviviaux et familiaux ainsi que ses espaces couverts spacieux pour profiter des beaux jours.  N’hésitez plus et inspirez-vous de cette maison d’architecte pour la construction de votre propre maison individuelle.

Construire cette maison

À partir de 237 000 € TTC

Je veux (presque) la même !

Pourquoi construire avec un architecte ?

Archionline vous permet de vous inspirer parmi plus d'un millier de plans de maisons en 3D afin de découvrir le savoir-faire et les réalisations des architectes. Ces plans sont une base solide pour envisager votre projet. Ils seront ensuite adaptés avec l'architecte créateur en fonction de votre environnement, votre envie et votre budget. L'architecte permet d'avoir un projet où chaque mètre-carré est complètement optimisé tout en respectant votre style de vie, vos envies et vos contraintes. Construire avec un architecte n'est pas forcément plus cher car il saura anticiper les différentes problématiques de votre construction afin d'avoir un projet qui respecte votre budget

Tableau de surfaces

Surface habitable

Surface cuisine :
18.6 m²
Salles de bain :
2
Nombre de chambre :
2
Surface chambre 1 :
20.73 m²
Surface chambre 2 :
18.99 m²

Surface annexe

Terrasse :
109.02 m²

Synthèse

Total surface habitable :
167.02 m²
Emprise au sol :
18.51 m x 17.28 m
Total surface annexe :
109.12 m²

Je veux (presque) la même !

Confiez votre projet

Budget et procédé

Archionline vous offre un chiffrage estimatif pour la construction de cette maison en fonction du procédé constructif et du type de livraison souhaité : auto-construction, clos couvert (hors d'eau, hors d'air) ou clé en main.

Construction classique

Chiffrage estimatif pour : Fondations et normes standards. Construction en brique, parpaing ou béton. Finitions haut de gamme. Le prix "auto-construction" inclut uniquement le coût des matériaux de construction. Il n'inclut pas la main d'oeuvre, piscine, jardin et clôture.

À partir de

167 000€ TTC

Je la veux !

Construction ossature bois

Chiffrage estimatif pour : Fondations et normes standards. Construction en ossature bois isolé. Finitions haut de gamme. Le prix "auto-construction" inclut uniquement le coût des matériaux de construction. Il n'inclut pas la main d'oeuvre, piscine, jardin et clôture.

À partir de

220 000€ TTC

Je la veux !

Construction BBC

Chiffrage estimatif pour : Fondations et normes standards. Construction en bloc coffrant isolant (RT 2020). Finitions haut de gamme. Le prix "auto-construction" inclut uniquement le coût des matériaux de construction. Il n'inclut pas la main d'oeuvre, piscine, jardin et clôture.

À partir de

220 000€ TTC

Je la veux !

Construction classique

Chiffrage estimatif pour : Fondations et normes standards. Construction en brique, parpaing ou béton. Finitions haut de gamme. Le prix "clos couvert" (hors d'eau, hors d'air) inclut le gros oeuvre, mais exclut le second oeuvre, piscine, jardin et clôture.

À partir de

211 000€ TTC

Je la veux !

Construction ossature bois

Chiffrage estimatif pour : Fondations et normes standards. Construction en ossature bois isolé. Finitions haut de gamme. Le prix "clos couvert" (hors d'eau, hors d'air) inclut le gros oeuvre, mais exclut le second oeuvre, piscine, jardin et clôture.

À partir de

228 000€ TTC

Je la veux !

Construction BBC

Chiffrage estimatif pour : Fondations et normes standards. Construction en bloc coffrant isolant (RT 2020). Finitions haut de gamme. Le prix "clos couvert" (hors d'eau, hors d'air) inclut le gros oeuvre, mais exclut le second oeuvre, piscine, jardin et clôture.

À partir de

246 000€ TTC

Je la veux !

Construction classique

Chiffrage estimatif pour : Fondations et normes standards. Construction en brique, parpaing ou béton. Finitions haut de gamme. Le prix "clé en main" inclut le gros oeuvre et le second oeuvre (cuisine, peinture, sols...), mais exclut piscine, jardin et clôture.

À partir de

333 000€ TTC

Je la veux !

Construction ossature bois

Chiffrage estimatif pour : Fondations et normes standards. Construction en ossature bois isolé. Finitions haut de gamme. Le prix "clé en main" inclut le gros oeuvre et le second oeuvre (cuisine, peinture, sols...), mais exclut piscine, jardin et clôture.

À partir de

333 000€ TTC

Je la veux !

Construction BBC

Chiffrage estimatif pour : Fondations et normes standards. Construction en bloc coffrant isolant (RT 2020). Finitions haut de gamme. Le prix "clé en main" inclut le gros oeuvre et le second oeuvre (cuisine, peinture, sols...), mais exclut piscine, jardin et clôture.

À partir de

386 000€ TTC

Je la veux !

D'autres maisons qui pourraient vous intéresser