Maison Vaucluse

Plans de maison moderne

194.7 m2

3

3

Extérieur Maison Vaucluse Archionline
Perspective intérieure maison Vaucluse Archionline
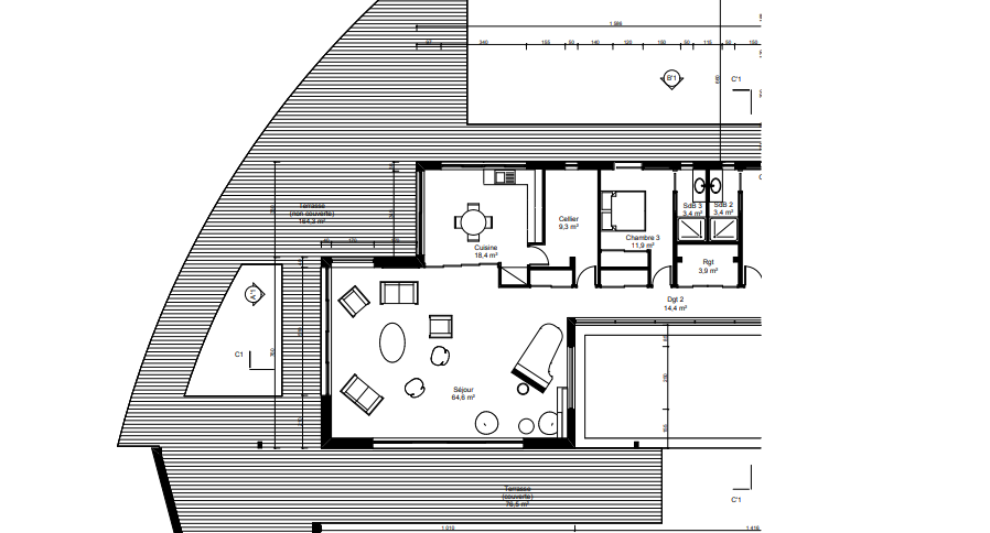
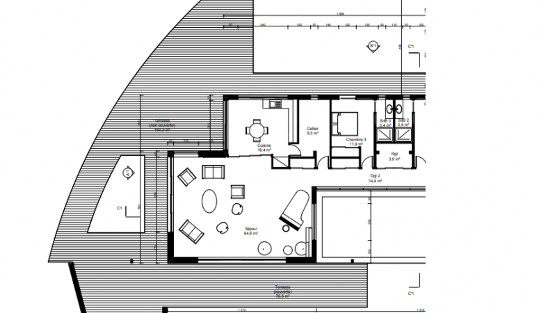
Maison Vaucluse Archionline RDC
Façade maison vaucluse Archionline
Plan de coupe Vaucluse Archionline

Description

Archionline vous propose la maison Vaucluse. Maison généreuse et contemporaine, de plain-pied et totalisant près de 200 m² habitables. Cette maison vous offrira des espaces fluides et de qualité pour chaque membre de votre famille.
Avec deux garages indépendants à la maison, d’une surface totale de 100 m², vous pourrez abriter vos autos et aménager un atelier ou une annexe technique. Vous passerez à la maison par un porche couvert, vous évitant de subir les intempéries. L’espace d’entrée est constitué d’une porte principale, en plus de son accès au garage. Vaste, il permet d’y accommoder de nombreux rangements et de desservir les différents espaces de la maison.
En face, vous poursuivrez directement dans la suite parentale d’un confort incomparable avec son dressing de 6 m², sa salle de bain privée de 11 m² et sa chambre de 14m². De plus deux grandes baies vitrées vous permettront d’accéder à une coursive extérieure.
Toujours depuis l’entrée, sur votre gauche, vous traverserez un couloir vitré, donnant sur l’extérieur et passerez devant deux chambres, chacune munie d’une petite pièce d’eau privée et d’un dressing commun.
Enfin, vous découvrirez une vaste pièce de séjour de 64,6 m² ouverte sur l’extérieur grâce à ses baies vitrées coulissantes, lui offrant une belle luminosité tout au long de la journée. La cuisine de 18 m² peut totalement s’ouvrir sur le séjour afin de créer une cuisine américaine. Elle est prolongée par un grand cellier, très fonctionnel.

N’hésitez plus et inspirez-vous de cette maison d’architecte pour la construction de votre propre maison individuelle. Avec Archionline, trouvez le bon architecte et les bons professionnels pour réaliser votre projet sur-mesure.

Construire cette maison

À partir de 326 000 € TTC

Je veux (presque) la même !

Pourquoi construire avec un architecte ?

Archionline vous permet de vous inspirer parmi plus d'un millier de plans de maisons en 3D afin de découvrir le savoir-faire et les réalisations des architectes. Ces plans sont une base solide pour envisager votre projet. Ils seront ensuite adaptés avec l'architecte créateur en fonction de votre environnement, votre envie et votre budget. L'architecte permet d'avoir un projet où chaque mètre-carré est complètement optimisé tout en respectant votre style de vie, vos envies et vos contraintes. Construire avec un architecte n'est pas forcément plus cher car il saura anticiper les différentes problématiques de votre construction afin d'avoir un projet qui respecte votre budget

Tableau de surfaces

Surface habitable

Surface cuisine :
18.4 m²
Salles de bain :
3
Nombre de chambre :
3
Surface chambre 1 :
14 m²
Surface chambre 2 :
11.5 m²
Surface chambre 3 :
11.9 m²

Surface annexe

Garage :
100 m²
Terrasse :
76.5 m²
Terrasse non couverte :
164.3 m²

Synthèse

Total surface habitable :
194.7 m²
Emprise au sol :
35m x 18m
Total surface annexe :
245 m²

Je veux (presque) la même !

Confiez votre projet

Budget et procédé

Archionline vous offre un chiffrage estimatif pour la construction de cette maison en fonction du procédé constructif et du type de livraison souhaité : auto-construction, clos couvert (hors d'eau, hors d'air) ou clé en main.

Construction classique

Chiffrage estimatif pour : Fondations et normes standards. Construction en brique, parpaing ou béton. Finitions haut de gamme. Le prix "auto-construction" inclut uniquement le coût des matériaux de construction. Il n'inclut pas la main d'oeuvre, piscine, jardin et clôture.

À partir de

227 000€ TTC

Je la veux !

Construction ossature bois

Chiffrage estimatif pour : Fondations et normes standards. Construction en ossature bois isolé. Finitions haut de gamme. Le prix "auto-construction" inclut uniquement le coût des matériaux de construction. Il n'inclut pas la main d'oeuvre, piscine, jardin et clôture.

À partir de

289 000€ TTC

Je la veux !

Construction BBC

Chiffrage estimatif pour : Fondations et normes standards. Construction en bloc coffrant isolant (RT 2020). Finitions haut de gamme. Le prix "auto-construction" inclut uniquement le coût des matériaux de construction. Il n'inclut pas la main d'oeuvre, piscine, jardin et clôture.

À partir de

289 000€ TTC

Je la veux !

Construction classique

Chiffrage estimatif pour : Fondations et normes standards. Construction en brique, parpaing ou béton. Finitions haut de gamme. Le prix "clos couvert" (hors d'eau, hors d'air) inclut le gros oeuvre, mais exclut le second oeuvre, piscine, jardin et clôture.

À partir de

300 000€ TTC

Je la veux !

Construction ossature bois

Chiffrage estimatif pour : Fondations et normes standards. Construction en ossature bois isolé. Finitions haut de gamme. Le prix "clos couvert" (hors d'eau, hors d'air) inclut le gros oeuvre, mais exclut le second oeuvre, piscine, jardin et clôture.

À partir de

321 000€ TTC

Je la veux !

Construction BBC

Chiffrage estimatif pour : Fondations et normes standards. Construction en bloc coffrant isolant (RT 2020). Finitions haut de gamme. Le prix "clos couvert" (hors d'eau, hors d'air) inclut le gros oeuvre, mais exclut le second oeuvre, piscine, jardin et clôture.

À partir de

341 000€ TTC

Je la veux !

Construction classique

Chiffrage estimatif pour : Fondations et normes standards. Construction en brique, parpaing ou béton. Finitions haut de gamme. Le prix "clé en main" inclut le gros oeuvre et le second oeuvre (cuisine, peinture, sols...), mais exclut piscine, jardin et clôture.

À partir de

454 000€ TTC

Je la veux !

Construction ossature bois

Chiffrage estimatif pour : Fondations et normes standards. Construction en ossature bois isolé. Finitions haut de gamme. Le prix "clé en main" inclut le gros oeuvre et le second oeuvre (cuisine, peinture, sols...), mais exclut piscine, jardin et clôture.

À partir de

454 000€ TTC

Je la veux !

Construction BBC

Chiffrage estimatif pour : Fondations et normes standards. Construction en bloc coffrant isolant (RT 2020). Finitions haut de gamme. Le prix "clé en main" inclut le gros oeuvre et le second oeuvre (cuisine, peinture, sols...), mais exclut piscine, jardin et clôture.

À partir de

515 000€ TTC

Je la veux !

D'autres maisons qui pourraient vous intéresser