Maison Carrout

Maisons bois

128.1 m2

3

1

Vue extérieure maison carrout Archionline
Vue intérieure salon Maison Carrout

Description

Archionline vous propose une maison bois spacieuse en rez de chausser d’une surface de 130 m² habitables. Elle propose en plus plusieurs terrasses ainsi qu’un abri auto.
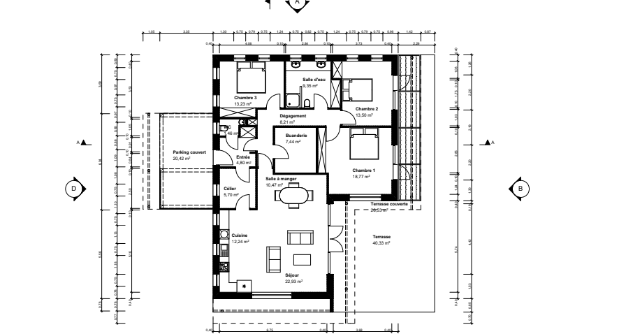
Depuis l’abris auto, vous trouverez l’entrée principale débouchant sur un espace accueillant permettant quelques rangements ainsi qu’un sanitaire et un cellier. Vous trouverez à la suite un couloir permettant de distinguer les espaces de nuit d’un coté et les espaces de vie de l’autre. Une grande pièce à vivre comprenant une cuisine de 12 m² ouverte sur un salon / salle à manger de 23 m². L’ensemble est très lumineux grâce aux baies vitrées coulissantes donnant sur la terrasse principale non couverte. Les chambres quand à elles, sont situées en retrait pour garantir leur indépendance et intimité. Deux totalisent 13,5 m², la dernière près de 19 m². Deux des chambres donnent accès à une terrasse couverte.
Cette maison traditionnelle est idéale pour toutes les familles ayant envie d’une maison bois simple et spacieuse et fonctionnelle. Elle est disponible en téléchargement avec son plan simple, et son plan complet pour réaliser l’avant projet de votre futur maison.

Construire cette maison

À partir de 196 000 € TTC

Je veux (presque) la même !

Pourquoi construire avec un architecte ?

Archionline vous permet de vous inspirer parmi plus d'un millier de plans de maisons en 3D afin de découvrir le savoir-faire et les réalisations des architectes. Ces plans sont une base solide pour envisager votre projet. Ils seront ensuite adaptés avec l'architecte créateur en fonction de votre environnement, votre envie et votre budget. L'architecte permet d'avoir un projet où chaque mètre-carré est complètement optimisé tout en respectant votre style de vie, vos envies et vos contraintes. Construire avec un architecte n'est pas forcément plus cher car il saura anticiper les différentes problématiques de votre construction afin d'avoir un projet qui respecte votre budget

Tableau de surfaces

Surface habitable

Surface cuisine :
12.24 m²
Salles de bain :
1
Nombre de chambre :
3
Surface chambre 1 :
13.23 m²
Surface chambre 2 :
13.5 m²
Surface chambre 3 :
18.77 m²

Surface annexe

Garage :
20.42 m²
Terrasse :
40.33 m²
Terrasse non couverte :
26.53 m²

Synthèse

Total surface habitable :
128.1 m²
Emprise au sol :
18m x 18m
Total surface annexe :
46.95 m²

Je veux (presque) la même !

Confiez votre projet

Budget et procédé

Archionline vous offre un chiffrage estimatif pour la construction de cette maison en fonction du procédé constructif et du type de livraison souhaité : auto-construction, clos couvert (hors d'eau, hors d'air) ou clé en main.

Construction classique

Chiffrage estimatif pour : Fondations et normes standards. Construction en brique, parpaing ou béton. Finitions haut de gamme. Le prix "auto-construction" inclut uniquement le coût des matériaux de construction. Il n'inclut pas la main d'oeuvre, piscine, jardin et clôture.

À partir de

126 000€ TTC

Je la veux !

Construction ossature bois

Chiffrage estimatif pour : Fondations et normes standards. Construction en ossature bois isolé. Finitions haut de gamme. Le prix "auto-construction" inclut uniquement le coût des matériaux de construction. Il n'inclut pas la main d'oeuvre, piscine, jardin et clôture.

À partir de

164 000€ TTC

Je la veux !

Construction BBC

Chiffrage estimatif pour : Fondations et normes standards. Construction en bloc coffrant isolant (RT 2020). Finitions haut de gamme. Le prix "auto-construction" inclut uniquement le coût des matériaux de construction. Il n'inclut pas la main d'oeuvre, piscine, jardin et clôture.

À partir de

164 000€ TTC

Je la veux !

Construction classique

Chiffrage estimatif pour : Fondations et normes standards. Construction en brique, parpaing ou béton. Finitions haut de gamme. Le prix "clos couvert" (hors d'eau, hors d'air) inclut le gros oeuvre, mais exclut le second oeuvre, piscine, jardin et clôture.

À partir de

160 000€ TTC

Je la veux !

Construction ossature bois

Chiffrage estimatif pour : Fondations et normes standards. Construction en ossature bois isolé. Finitions haut de gamme. Le prix "clos couvert" (hors d'eau, hors d'air) inclut le gros oeuvre, mais exclut le second oeuvre, piscine, jardin et clôture.

À partir de

173 000€ TTC

Je la veux !

Construction BBC

Chiffrage estimatif pour : Fondations et normes standards. Construction en bloc coffrant isolant (RT 2020). Finitions haut de gamme. Le prix "clos couvert" (hors d'eau, hors d'air) inclut le gros oeuvre, mais exclut le second oeuvre, piscine, jardin et clôture.

À partir de

185 000€ TTC

Je la veux !

Construction classique

Chiffrage estimatif pour : Fondations et normes standards. Construction en brique, parpaing ou béton. Finitions haut de gamme. Le prix "clé en main" inclut le gros oeuvre et le second oeuvre (cuisine, peinture, sols...), mais exclut piscine, jardin et clôture.

À partir de

251 000€ TTC

Je la veux !

Construction ossature bois

Chiffrage estimatif pour : Fondations et normes standards. Construction en ossature bois isolé. Finitions haut de gamme. Le prix "clé en main" inclut le gros oeuvre et le second oeuvre (cuisine, peinture, sols...), mais exclut piscine, jardin et clôture.

À partir de

251 000€ TTC

Je la veux !

Construction BBC

Chiffrage estimatif pour : Fondations et normes standards. Construction en bloc coffrant isolant (RT 2020). Finitions haut de gamme. Le prix "clé en main" inclut le gros oeuvre et le second oeuvre (cuisine, peinture, sols...), mais exclut piscine, jardin et clôture.

À partir de

290 000€ TTC

Je la veux !

D'autres maisons qui pourraient vous intéresser